Мы используем куки-файлы. Соглашение об использовании
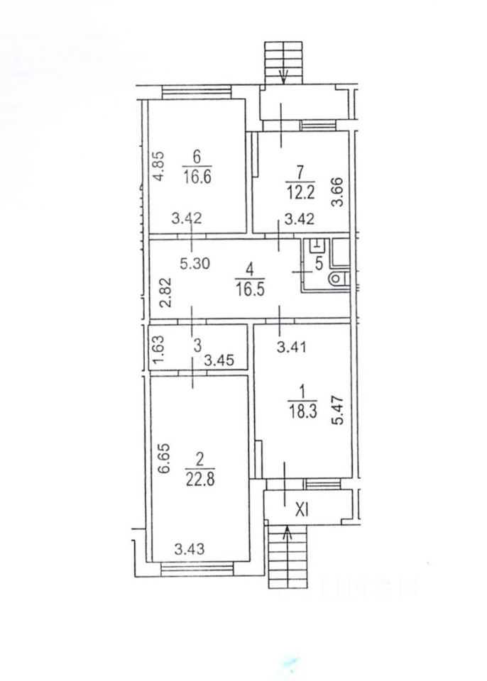
Помещение свободного назначения, 94,2 м²

Продается помещение свободного назначения, 94,2 м²

Площадь94,2 м²
Этаж1 из 17
ПомещениеСвободно
Отчёт о привлекательности объектаУзнайте, насколько помещение и район подходят для вашего бизнеса
Что входит в отчёт
  • Охват населения
  • Пешеходный трафик
  • Автомобильный трафик
  • Средний бюджет семьи по району
  • Арендные ставки рядом
  • Точки притяжения
  • Конкуренты в радиусе 1 км
  • Рекомендации по выбору места для бизнеса
Продается нежилое помещение универсального назначения в ВАО (р-н Преображенское). Идеальный вариант под готовый арендный бизнес, ПВЗ, салон красоты, медицинский центр, клинику, стоматологию или офис. Ключевые характеристики: • ул. 4-я Гражданская, д. 36. • Площадь: 94.2 кв.м. • Этаж: 1-й этаж жилого кирпичного дома. • Вход: 2 независимых входа (возможность разделения на два отдельных блока. • Планировка: Кабинетная • Коммуникации: Все центральные (свет, вода, отопление, канализация), 2 мокрые точки. Юридический статус: Продажа осуществляется через переуступку прав по Договору купли-продажи (ДКП) с Департаментом городского имущества (ДГИ) г. Москвы. • Преимущество: Выгодные условия выкупа, возможность использования рассрочки от города. • Сделка проходит прозрачно, полная поддержка на этапе перерегистрации. Инфраструктура: Объект расположен в густонаселенном жилом массиве. Высокий рекламный потенциал фасада. В шаговой доступности остановки общественного транспорта. Цена: 11 200 000 руб. (департаменту 17 100 000 в рассрочку на 7 лет. ) Звоните, отвечу на все вопросы и организую показ!
lock

Войдите или зарегистрируйтесь
для просмотра информации

Просматривайте условия сделки и всю информацию об объекте
Сохраняйте фильтры в поиске и не вводите заново
Доступ к избранному с любого устройства
Неограниченное добавление в избранное
Позвоните автору
Вам ответят на все вопросы
Остались вопросы по объявлению?
Позвоните владельцу объявления и уточните необходимую информацию.
  • Инфраструктура
  • Похожие рядом
  • Общая площадь94,2 м²
Приточная вентиляция
Центральное отопление
Помощь надёжных риелторов
Риелтор партнёр Циан поможет купить или продать любую недвижимость
Автор объявления
ID 60641173
  • 5 лет 5 месяцев на Циане
  • 11 200 000 ₽
    147 265 $
    124 965
    Цена за метр
    118 896 ₽
    Налог
    УСН
    Автор объявления
    ID 60641173