Мы используем куки-файлы. Соглашение об использовании
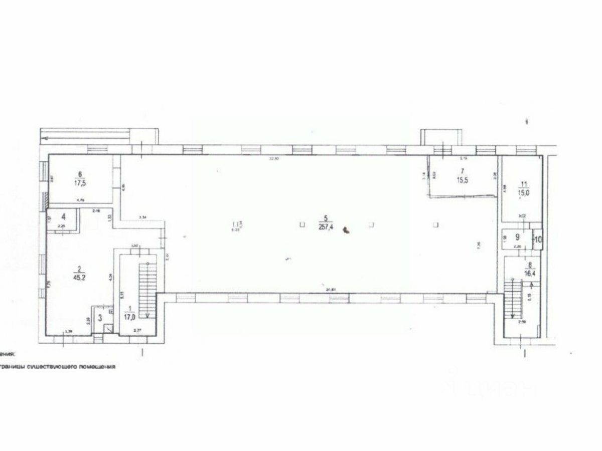
Помещение свободного назначения, 853,5 м²
Площадь853,5 м²
Этаж1 из 2
ПомещениеСвободно
Отчёт о привлекательности объектаУзнайте, насколько помещение и район подходят для вашего бизнеса
Что входит в отчёт
  • Охват населения
  • Пешеходный трафик
  • Автомобильный трафик
  • Средний бюджет семьи по району
  • Арендные ставки рядом
  • Точки притяжения
  • Конкуренты в радиусе 1 км
  • Рекомендации по выбору места для бизнеса
646055. Предлагаем отдельно стоящее двухэтажное административное здание с арендаторами Пятёрочка, Хостел, Кафе, площадью 853.5 кв. м. Без комиссии для покупателя. Преимущества объекта: -первая линия ул. Петра Алексеева; -объект отлично просматривается, находится в легком доступе для потенциальных клиентов; -плотный жилой массив; -сложившееся торговое окружение; -развитая транспортная доступность; -гибкая планировка, позволяющая адаптировать пространство под различные нужды; -вытяжка под общепит; -витринное остекление; -место для вывески; -зона погрузки/разгрузки; -наземная парковка; -рядом остановка общественного транспорта; -ЗУ в долгосрочной аренде. Технические параметры объекта: -отдельный вход на каждый этаж; -электрическая мощность: 150 кВт; -высота потолков: 3,5 м до 4 м. Информация об арендаторах: -арендаторы: Пятерочка, ДДА. Хостел, Кафе; -доход: 1 800 000 руб/мес; -окупаемость: 9 лет; -доходность: 11.11%. Свяжитесь с нами для получения дополнительной информации!
lock

Войдите или зарегистрируйтесь
для просмотра информации

Просматривайте условия сделки и всю информацию об объекте
Сохраняйте фильтры в поиске и не вводите заново
Доступ к избранному с любого устройства
Неограниченное добавление в избранное
Позвоните автору
Вам ответят на все вопросы
Остались вопросы по объявлению?
Позвоните владельцу объявления и уточните необходимую информацию.
  • Инфраструктура
  • Похожие рядом
Помощь надёжных риелторов
Риелтор партнёр Циан поможет купить или продать любую недвижимость
240 000 000 ₽
3 155 674 $
2 677 807
Цена за метр
281 196 ₽
Налог
НДС включен: 43 278 688 ₽
Агентство недвижимости
Документы проверены