Мы используем куки-файлы. Соглашение об использовании

Продается арендный бизнес, 320 м²

Площадь320 м²
Этаж-1
Прибыль350 000 ₽/мес.
КатегорияСвободное назначение
Отчёт о привлекательности объектаУзнайте, насколько помещение и район подходят для вашего бизнеса
Что входит в отчёт
  • Охват населения
  • Пешеходный трафик
  • Автомобильный трафик
  • Средний бюджет семьи по району
  • Арендные ставки рядом
  • Точки притяжения
  • Конкуренты в радиусе 1 км
  • Рекомендации по выбору места для бизнеса
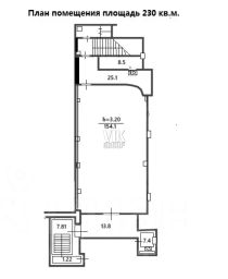
Продается два нежилых помещения свободного назначения в г Москве район Братеево по ул Ключевая дом 22 корпус 2. Помещения расположены на цокольном этаже отдельно стоящего двух этажного панельного дома, построенного в 1998г. Общая площадь всех помещений 320кв.м. Возможно купить по отдельности. Помещение, площадь 230кв.м, с интересной и функциональной планировкой (на данный момент используется под ресторан, банкетный зал на 120 посадочных мест): два отдельных благоустроенных входа с зоной разгрузки; пологие лестницы; холл 15кв.м с гардеробной; зал 155кв.м с двумя входами на кухню; в кухонной зоне 26кв.м установлена электроплита мощностью 380 кВт, большой мангал с вытяжкой, помещения для хранения продуктов; гостевой санузел и отдельный для персонала, два подсобных помещения от 7 до 8кв.м. Выполнен качественный ремонт в классическом стиле: входная группа отделана декоративным камнем и на стенах декоративная штукатурка с художественной росписью; пол выложен кафелем с мозаичным орнаментом; двойные фигурные потолки с точечными светильниками, цветной фоновой подсветкой, красивыми люстрами; на стенах в зале прекрасные живописные картины ручной работы; современные столы со стульями в изысканном убранстве; грамотно обустроен DJ подиум; просторная барная стойка; металлическая входная дверь. Кадастровый 77:05:0012006:6145. Помещение, площадь 90кв.м (на данный момент используется под караоке-бар на 40 посадочных мест): с выделенными зонами для отдыха 40 и 20кв.м; кабинет 12кв.м; холл 12кв.м с обустроенным DJ местом. Кадастровый 77:05:0012006:6146. Высота потолков 3,2м. Все коммуникации- центральные, разрешённая электрическая мощность 150кВт, установлена приточно-вытяжная вентиляция. Продается готовый арендный бизнес с высокой доходностью, окупаемость менее 5 лет. Помещения возможно использовать под любой вид деятельности: офис, мастерскую, студию красоты, торговую точку, фитнес зал, квест-шоу, лазертаг. Отличное местоположение: много парковочных мест, густонаселенный жилой район, высокий пешеходный и автомобильный трафик. Развита инфраструктура района. Хорошее транспортное сообщение, 250 метров от метро Алма-Атинская. Полная стоимость в ДКП. Свободная продажа.
lock

Войдите или зарегистрируйтесь
для просмотра информации

Просматривайте условия сделки и всю информацию об объекте
Сохраняйте фильтры в поиске и не вводите заново
Доступ к избранному с любого устройства
Неограниченное добавление в избранное
Позвоните автору
Вам ответят на все вопросы
Остались вопросы по объявлению?
Позвоните владельцу объявления и уточните необходимую информацию.
  • Инфраструктура
  • Похожие рядом
Помощь надёжных риелторов
Риелтор партнёр Циан поможет купить или продать любую недвижимость
РиелторВероника Гречаник
Суперагент
  • 4,6・55
  • 18 лет 9 месяцев на Циане
  • 16 объявлений
  • 34 990 000 ₽
    467 563 $
    399 767
    Цена за метр
    109 344 ₽
    Налог
    УСН
    РиелторВероника Гречаник
    Суперагент