Мы используем куки-файлы. Соглашение об использовании
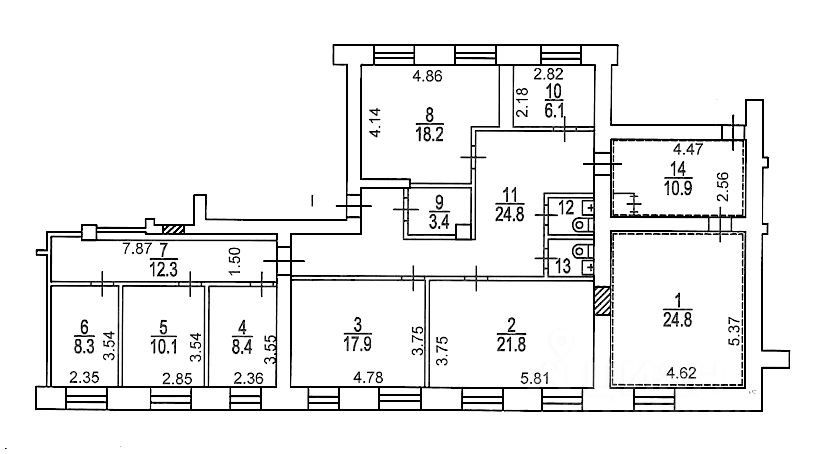
Помещение свободного назначения, 178,3 м²

Продается помещение свободного назначения, 178,3 м²

Площадь178,3 м²
Этаж3 из 8
Отчёт о привлекательности объектаУзнайте, насколько помещение и район подходят для вашего бизнеса
Что входит в отчёт
  • Охват населения
  • Пешеходный трафик
  • Автомобильный трафик
  • Средний бюджет семьи по району
  • Арендные ставки рядом
  • Точки притяжения
  • Конкуренты в радиусе 1 км
  • Рекомендации по выбору места для бизнеса
В продаже помещение свободного назначения общей площадью 178,3 кв.метров, расположенное в шаговой доступности от метро Автозаводская (менее 1 минуты) Помещение в хорошем состоянии, кабинетная планировка, возможность быстрого въезда или сдачи в аренду по кабинетам. Подойдёт под офис компании, юридические и консалтинговые услуги, медицинские или образовательные проекты, хостел, арендный бизнес. Удобное расположение, доступность для сотрудников и клиентов. Готовый вариант для эффективной работы и стабильного дохода.
lock

Войдите или зарегистрируйтесь
для просмотра информации

Просматривайте условия сделки и всю информацию об объекте
Сохраняйте фильтры в поиске и не вводите заново
Доступ к избранному с любого устройства
Неограниченное добавление в избранное
Позвоните автору
Вам ответят на все вопросы
Остались вопросы по объявлению?
Позвоните владельцу объявления и уточните необходимую информацию.
  • Инфраструктура
  • Похожие рядом
  • Тип зданияОфисно-жилой комплекс
  • Площадь участка0 сот.
  • Общая площадь2 318,6 м²
Естественная вентиляция
Местное кондиционирование
Центральное отопление
Сигнализация
Помощь надёжных риелторов
Риелтор партнёр Циан поможет купить или продать любую недвижимость
44 990 000 ₽
600 824 $
512 549
Цена за метр
252 328 ₽
Налог
УСН
Агентство недвижимости
Документы проверены