Мы используем куки-файлы. Соглашение об использовании
Помещение свободного назначения, 364,8 м²
Площадь364,8 м²
Этаж1 из 2
Отчёт о привлекательности объектаУзнайте, насколько помещение и район подходят для вашего бизнеса
Что входит в отчёт
  • Охват населения
  • Пешеходный трафик
  • Автомобильный трафик
  • Средний бюджет семьи по району
  • Арендные ставки рядом
  • Точки притяжения
  • Конкуренты в радиусе 1 км
  • Рекомендации по выбору места для бизнеса
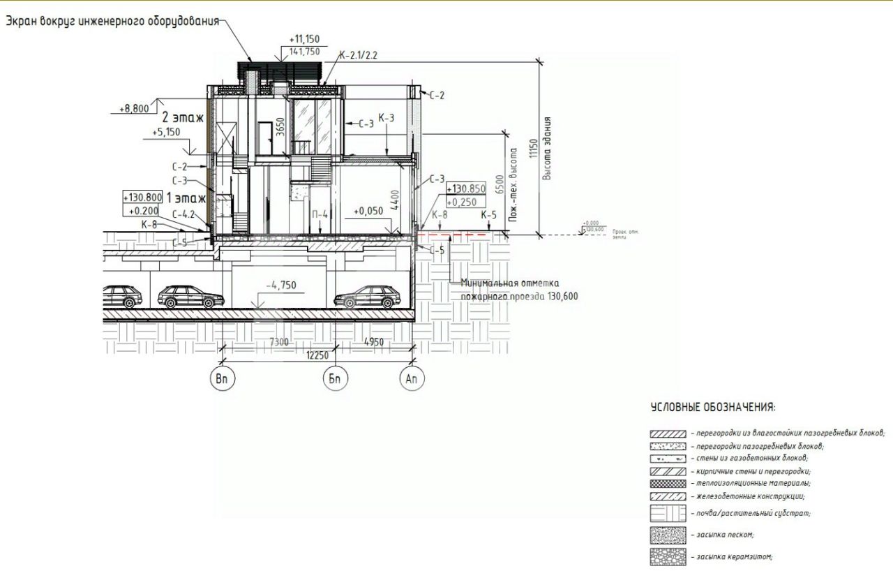
804069. Предлагаем к приобретению коммерческое помещение под общепит, площадью 364,8 кв. м., расположенное на 1 и 2 этажах и открытой террасе в жилом комплексе "Клубный город на реке Primavera". Без комиссии для покупателя. Преимущества объекта: -первая линия Покровской набережной; -ЖК состоит из 3 кварталов переменной этажности (от 5 до 22 этажей); -13 минут пешком от станции метро Спартак; -район современной жилой застройки; -зальная планировка; -панорамное остекление; -вытяжка для общепита; -место для вывески; -парковка вдоль дороги; -есть возможность перепланировки. Технические параметры объекта: -3 отдельные входные группы; -площадь по этажам: 1 этаж - 178.6 кв. м., 2 этаж - 186.2 кв. м.; -электрическая мощность: 80 кВт; -высота потолков: 1 этаж 4 м.; 2 этаж 3.65 м. Свяжитесь с нами для получения дополнительной информации!
lock

Войдите или зарегистрируйтесь
для просмотра информации

Просматривайте условия сделки и всю информацию об объекте
Сохраняйте фильтры в поиске и не вводите заново
Доступ к избранному с любого устройства
Неограниченное добавление в избранное
Позвоните автору
Вам ответят на все вопросы
Остались вопросы по объявлению?
Позвоните владельцу объявления и уточните необходимую информацию.
  • Инфраструктура
  • Похожие рядом
  • Тип зданияОтдельно стоящее здание
  • Общая площадь364,8 м²
Помощь надёжных риелторов
Риелтор партнёр Циан поможет купить или продать любую недвижимость
218 880 000 ₽
2 930 329 $
2 498 836
Цена за метр
600 000 ₽
Налог
НДС включен: 39 470 163 ₽
Агентство недвижимости
Документы проверены