Мы используем куки-файлы. Соглашение об использовании
Помещение свободного назначения, 192 м²

Продается помещение свободного назначения, 192 м²

Площадь192 м²
Этаж1 из 5
Отчёт о привлекательности объектаУзнайте, насколько помещение и район подходят для вашего бизнеса
Что входит в отчёт
  • Охват населения
  • Пешеходный трафик
  • Автомобильный трафик
  • Средний бюджет семьи по району
  • Арендные ставки рядом
  • Точки притяжения
  • Конкуренты в радиусе 1 км
  • Рекомендации по выбору места для бизнеса
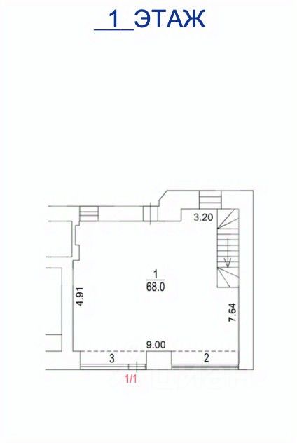
947938. Предлагаем помещение свободного назначения, площадью 192 кв. м, расположенное в подвале и на первом этаже 5-этажного жилого дома. Без комиссии для покупателя. Преимущества объекта: -первая линия пер. Сивцев Вражек; -шаговая доступность от станции метро Кропоткинская (5 минут пешком); -удобная транспортная доступность: 2 км до Садового кольца, 5 км до ТТК, 6 км до ТТК; -плотный жилой массив; -развитая инфраструктура района; -высокий автомобильный и пешеходный трафик; -отлично просматривается, находится в легком доступе для потенциальных клиентов; -гибкая планировка, позволяющая адаптировать пространство под различные нужды; -дизайнерская отделка во всем помещении; -витринное остекление; -возможность размещения вывески; -зона погрузки/разгрузки; -есть парковочные места во дворе. Технические параметры объекта: -отдельный вход с фасада и со двора. -подвал (113.4 кв.м), 1 этаж (73.8 кв.м); -высота потолков: 3 м. Свяжитесь с нами для получения дополнительной информации!
lock

Войдите или зарегистрируйтесь
для просмотра информации

Просматривайте условия сделки и всю информацию об объекте
Сохраняйте фильтры в поиске и не вводите заново
Доступ к избранному с любого устройства
Неограниченное добавление в избранное
Позвоните автору
Вам ответят на все вопросы
Остались вопросы по объявлению?
Позвоните владельцу объявления и уточните необходимую информацию.
  • Инфраструктура
  • Похожие рядом
  • Тип зданияАдминистративное здание
  • Общая площадь192 м²
Помощь надёжных риелторов
Риелтор партнёр Циан поможет купить или продать любую недвижимость
160 000 000 ₽
2 136 736 $
1 822 799
Цена за метр
833 334 ₽
Налог
УСН
Агентство недвижимости
Документы проверены