Мы используем куки-файлы. Соглашение об использовании
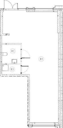
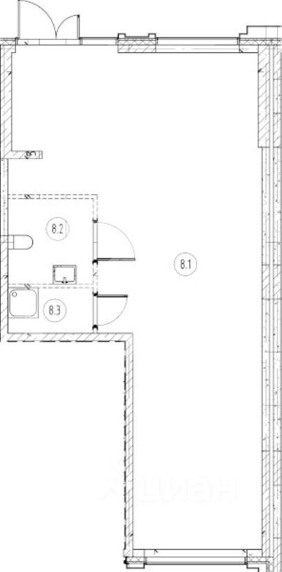
Помещение свободного назначения, 68,4 м²

Продается помещение свободного назначения, 68,4 м²

Площадь68,4 м²
Этаж1 из 18
Отчёт о привлекательности объектаУзнайте, насколько помещение и район подходят для вашего бизнеса
Что входит в отчёт
  • Охват населения
  • Пешеходный трафик
  • Автомобильный трафик
  • Средний бюджет семьи по району
  • Арендные ставки рядом
  • Точки притяжения
  • Конкуренты в радиусе 1 км
  • Рекомендации по выбору места для бизнеса
1176855. Предлагаем помещение свободного назначения, площадью 68,4 кв. м., расположенное на первом этаже 18-этажного жилого дома в ЖК "Шагал". Корпус 8, очередь 2, этап 4. Без комиссии для покупателя. Преимущества объекта: -первая линия наб. Марка Шагала; -ЖК состоит из 67 корпусов переменной этажности (от 2 до 28 этажей); -5 минут на автомобиле от станции метро "ЗИЛ"; -удобная транспортная доступность: выезд на ТТК, Варшавское и Загородное шоссе; -район плотной жилой застройки, напротив располагается ЖК "Нагатино Ай Лэнд"; -развитая инфраструктура; -стабильный автомобильный и пешеходный трафик; -отлично просматривается, находится в легком доступе для потенциальных клиентов; -гибкая планировка, позволяющая адаптировать пространство под различные нужды; -витринное остекление; -возможность размещения вывески; -выводы ГВС/ХВС и канализации; -есть отдельная вытяжка на крышу; -наземная парковка. Технические параметры объекта: -отдельный вход с фасада; -электрическая мощность: 14 кВт; -высота потолков: 5.5 м. Свяжитесь с нами для получения дополнительной информации!
lock

Войдите или зарегистрируйтесь
для просмотра информации

Просматривайте условия сделки и всю информацию об объекте
Сохраняйте фильтры в поиске и не вводите заново
Доступ к избранному с любого устройства
Неограниченное добавление в избранное
Позвоните автору
Вам ответят на все вопросы
Остались вопросы по объявлению?
Позвоните владельцу объявления и уточните необходимую информацию.
  • Инфраструктура
  • Похожие рядом
  • Тип зданияЖилой комплекс
  • Категория зданияДействующее
  • Общая площадь68,4 м²
Приточная вентиляция
Центральное кондиционирование
Центральное отопление
Помощь надёжных риелторов
Риелтор партнёр Циан поможет купить или продать любую недвижимость
46 368 342 ₽
619 231 $
528 252
Цена за метр
677 900 ₽
Налог
НДС не включен
Агентство недвижимости
Документы проверены