Мы используем куки-файлы. Соглашение об использовании

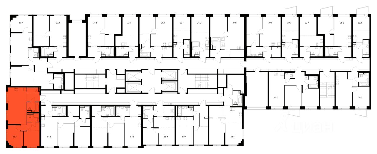
Продается 2-комн. квартира, 53,7 м²

Транспортная доступность 5,9 из 10Подробнее
Общая площадь53,7 м²
Жилая площадь17,2 м²
Площадь кухни21,1 м²
Этаж6 из 27
Год сдачи2029
ДомНе сдан
ОтделкаЧистовая
Продаётся 2-комн. квартира площадью 53,7 кв.м на 6 этаже 27 этажного дома (Корпус 4.5, Секция 6) проекта ПИК Амурский парк. Светлый просторный подъезд на уровне земли, функциональная планировка, большие окна, c отделкой. "Амурский парк" — проект "Серии плюс" на востоке Москвы, в 10 минутах пешком от станций метро "Черкизовская" и МЦК "Локомотив". В квартале будет всё для комфортной жизни: квартиры с готовой отделкой и видом на Измайловский парк, уютные дизайнерские лобби, подземный паркинг, торговые галереи на первых этажах и свой детский сад с бассейном. Всего в 8 минутах пешком от квартала "Амурский парк" находится уютный Сиреневый сад, а в 20 минутах — Детский Черкизовский Парк, за 10 минут можно доехать на машине до парка "Лосиный Остров". Квартал от мастерской M.A.M. отражает уникальный архитектурный почерк и органично дополняет городской ландшафт. В основе концепции — принцип сомасштабности человеку, благодаря чему внутри проекта формируется комфортное и гармоничное пространство для жизни. Квартал представлен разновысотными корпусами в минималистичном стиле. Образ строится на сочетании мягких пластичных линий и строгих геометрических форм. Рельефные детали в виде вертикальных металлических ламелей добавляют зданиям объём и глубину, делая архитектуру более выразительной. Цветовая гамма фасадов построена на контрасте терракотового и молочно-серого оттенков, которые создают атмосферу тепла и уюта. Магазины, рестораны и полезные сервисы на первых этажах создадут комфортное пространство для покупок, прогулок и встреч за чашкой кофе. Артикул 1020965 (Застройщик АО "СПЕЦИАЛИЗИРОВАННЫЙ ЗАСТРОЙЩИК "ГЛОРИ"")

О квартире

Тип жилья

Новостройка

Общая площадь

53,7 м²

Жилая площадь

17,2 м²

Площадь кухни

21,1 м²

Высота потолков

2,66 м

Санузел

2 совмещенных

Вид из окон

На улицу и двор

Отделка

Чистовая

О доме

Количество лифтов

4 пассажирских

Тип дома

Монолитный

Парковка

Подземная

Понравилась квартира — узнайте о ней больше

Застройщик ответит на все вопросы

Отделка квартиры

Чистовая: ремонт сделан, остаётся расставить мебель и заселиться

О ЖК «Амурский парк»

  • Сдача комплекса
    Сдача в 1 кв. 2029, есть сданные
  • Застройщик
    ПИК
  • Класс
    Бизнес
  • Тип дома
    Монолитный
  • Парковка
    Подземная, гостевая
  • Отделка
    Чистовая
  • Тип комплекса
    Жилой комплекс
Похоже на то, что вы ищете?

Особенности жилого комплекса

  • Отделка

  • Парковка

  • Внутренний двор

  • Парки

  • Архитектура

  • Входная группа

  • Лифт

Подробнее о жилом комплексе

Акции в ЖК «Амурский парк»

Узнайте про персональные условия и дополнительные скидки при покупке квартиры у застройщика
logo

Квартиры с выгодой до 2,5 млн руб.

Рассрочка на 6 месяцев

Рассрочка на 9 месяцев

Рассрочка на 12 месяцев

Ипотечный калькулятор
  • Базовая
  • Семейная
  • ИТ-ипотека
  • 20%
  • 30%
  • 40%
  • 50%
лет
  • 10 лет
  • 20 лет
  • 30 лет
Загружаем предложения от застройщика и банков
Корпус проверен наш.дом.рф
Обновлено 9 апреля 2026
  • Нет в реестре проблемных объектов
  • Застройщик не банкрот
  • Есть эскроу счёт
  • Неактуальные фото стройки

Ещё квартиры в жилом комплексе

315 квартир в продаже · Сдача в 1 кв. 2029, есть сданные
ЗастройщикПИК
Год основания: 1994
Строится: 289 домов в 60 ЖК
21 018 180 ₽
Цена за метр
391 400 ₽/м²
Условия сделки
долевое участие (214-ФЗ)