Мы используем куки-файлы. Соглашение об использовании

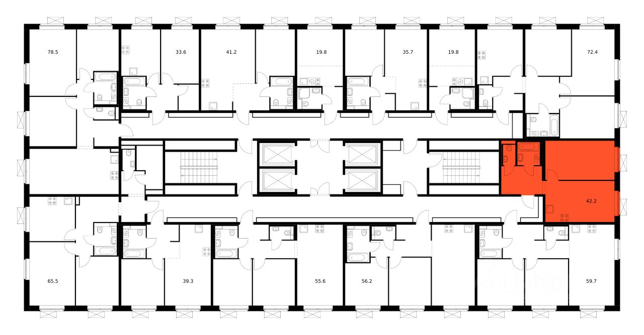
Продается 1-комн. квартира, 42,2 м²

Транспортная доступность 5,5 из 10Подробнее
Общая площадь42,2 м²
Жилая площадь15,2 м²
Площадь кухни16 м²
Этаж23 из 25
Год сдачи2028
ДомНе сдан
ОтделкаЧистовая
Продаётся 1-комн. квартира площадью 42,2 кв.м на 23 этаже 25 этажного дома (Корпус 18-20, Секция 1) проекта ПИК Люблинский парк. Светлый просторный подъезд на уровне земли, функциональная планировка, большие окна, c отделкой. Жилой квартал "Люблинский парк" расположен на юго-востоке Москвы, в шаговой доступности от станции "Братиславская". На метро до центра ехать всего 30 минут. Также недалеко станция МЦД "Перерва", от которой можно уехать в Москву или в область. В проекте 54 жилых корпуса, три школы, семь детских садов, поликлиника. В районе есть все условия для комфортной жизни: торговые центры, школы, детские сады, поликлиники и спортивные центры. Рядом находятся усадьба Люблино, скверы и парки. Различные магазины, кафе и другие сервисы откроются на первых этажах, а на подземных будут паркинги с удобной навигацией. В зелёных дворах без автомобилей мы построим детские площадки и места для отдыха. А ещё "Люблинский парк" стал третьим проектом ПИК с большой игровой площадкой ПлейХаб, которая уже открылась между 1-м и 2-м блоками на безопасном расстоянии от дороги. Новое детское пространство "Остров" воплощает идею бесконечной игры. Ландшафт площадки — это ещё и игровой элемент, который помогает детям придумывать множество самых разнообразных игр. Здесь интересно детям разного возраста — от малышей до подростков. Жителям квартала Люблинский парк и их друзьям доступен проект ПИКСПОРТ — это бесплатные занятия с профессиональными тренерами. Тренировки по разным направлениям, например йога, фитнес, бег, воркаут, проходят как в группе на улице рядом с домом, так и онлайн. Артикул 604874 (Застройщик ООО СЗ "Люблино Девелопмент")

О квартире

Тип жилья

Новостройка

Общая площадь

42,2 м²

Жилая площадь

15,2 м²

Площадь кухни

16 м²

Высота потолков

2,62 м

Санузел

1 раздельный

Вид из окон

Во двор

Отделка

Чистовая

О доме

Количество лифтов

2 пассажирских, 9 грузовых

Тип дома

Монолитный

Парковка

Подземная

Пандус

Есть

Понравилась квартира — узнайте о ней больше

Застройщик ответит на все вопросы

Отделка квартиры

Чистовая: ремонт сделан, остаётся расставить мебель и заселиться

О ЖК «Люблинский парк»

  • Сдача комплекса
    Сдача в 2026—2028, есть сданные
  • Застройщик
    ПИК
  • Класс
    Комфорт
  • Тип дома
    Панельный, монолитный
  • Парковка
    Отдельная многоуровневая, гостевая
  • Отделка
    Чистовая
  • Тип комплекса
    Жилой комплекс
Похоже на то, что вы ищете?

Особенности жилого комплекса

  • Отделка

  • Парковка

  • Внутренний двор

  • Парки

  • Архитектура

  • Входная группа

  • Лифт

Подробнее о жилом комплексе

Акции в ЖК «Люблинский парк»

Узнайте про персональные условия и дополнительные скидки при покупке квартиры у застройщика
Ипотечный калькулятор
  • Базовая
  • Семейная
  • ИТ-ипотека
  • 20%
  • 30%
  • 40%
  • 50%
лет
  • 10 лет
  • 20 лет
  • 30 лет
Загружаем предложения от застройщика и банков
Корпус проверен наш.дом.рф
Обновлено 7 апреля 2026
  • Нет в реестре проблемных объектов
  • Застройщик не банкрот
  • Нет эскроу счета
  • Неактуальные фото стройки

Ещё квартиры в жилом комплексе

417 квартир в продаже · Сдача в 2026—2028, есть сданные
ЗастройщикПИК
Год основания: 1994
Строится: 289 домов в 60 ЖК
16 829 360 ₽
Цена за метр
398 800 ₽/м²
Условия сделки
долевое участие (214-ФЗ)