Мы используем куки-файлы. Соглашение об использовании
ЗабронированаОт застройщикаТолько на Циан
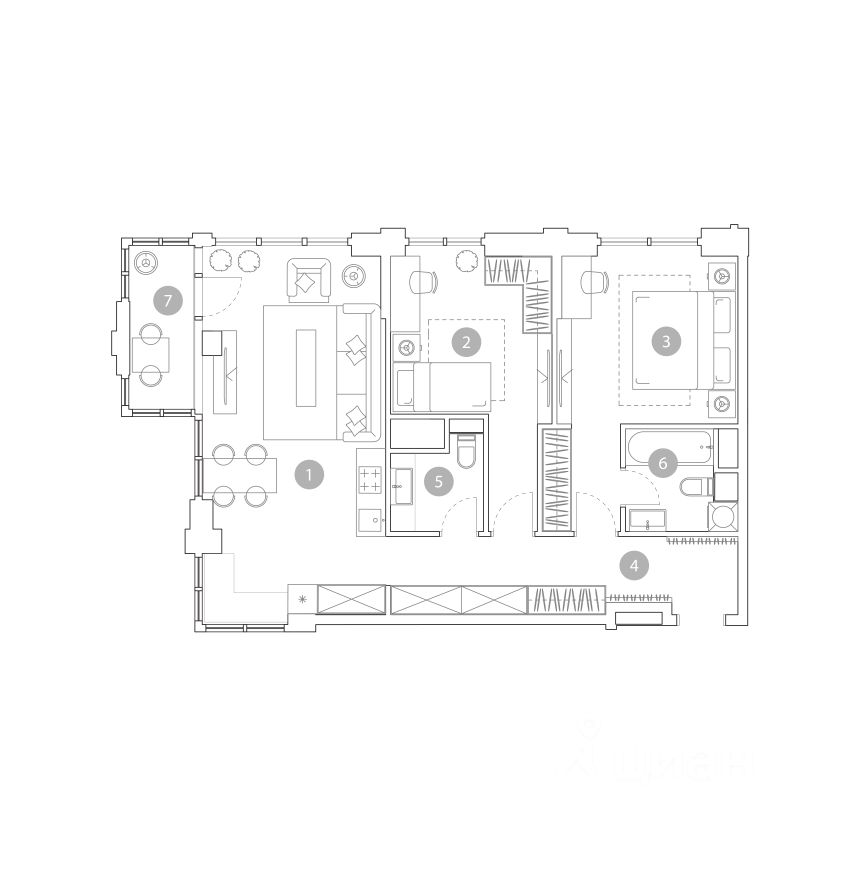
Общая площадь78,6 м²
Жилая площадь45,8 м²
Площадь кухни27,8 м²
Этаж6 из 19
Год сдачи2025
ДомСдан
ОтделкаБез отделки

Подробнее о квартире

Продается 3-к квартира площадью 78.6 кв.м. на 6-м этаже Уникальная концепция проекта сочетает в себе все преимущества жизни стремительного мегаполиса и спокойного приватного отдыха в единении с природой. На закрытой благоустроенной территории предусмотрены: собственный подземный паркинг, разнообразная инфраструктура на первых этажах с дизайнерскими лобби, ресепшен-службой и комфортабельными зонами отдыха, хобби-комнатой, залом для проведения частных мероприятий, а также супермаркет, кафе и свой детский сад.

О квартире

Тип жилья

Новостройка

Общая площадь

78,6 м²

Жилая площадь

45,8 м²

Площадь кухни

27,8 м²

Высота потолков

3,3 м

Санузел

2 раздельных

Вид из окон

Во двор

Отделка

Без отделки

О доме

Тип дома

Монолитный

Парковка

Подземная

Понравилась квартира — узнайте о ней больше

Застройщик ответит на все вопросы

Отделка в ЖК

  • Без отделки

О ЖК «ВЭРИ на Миклухо-Маклая»

  • Сдача комплекса
    Сдан
  • Застройщик
    ГК Основа
  • Класс
    Бизнес
  • Тип дома
    Монолитный
  • Парковка
    Подземная
  • Отделка
    Без отделки
  • Тип комплекса
    Жилой комплекс

Особенности жилого комплекса

  • Отделка

  • Парковка

  • Внутренний двор

  • Архитектура

  • Входная группа

  • Лифт

Подробнее о жилом комплексе

Акции в ЖК «ВЭРИ на Миклухо-Маклая»

Узнайте про персональные условия и дополнительные скидки при покупке квартиры у застройщика
logo

Скидки до 10%

Рассрочка 0% с ПВ от 30%

Ипотечный калькулятор
  • Базовая
  • Семейная
  • ИТ-ипотека
  • 20%
  • 30%
  • 40%
  • 50%
лет
  • 10 лет
  • 20 лет
  • 30 лет
Загружаем предложения от застройщика и банков

Ещё квартиры в жилом комплексе

115 квартир в продаже · Сдан
ЗастройщикГК Основа
Год основания: 2016
Строится: 24 дома в 10 ЖК

Такая же квартира на другом этаже

Планировка
Площадь
Срок сдачи
Этаж
Стоимость
Планировка
4 кв. 2025
8 из 19
46 469 500 ₽
45 981 000 ₽
Цена за метр
585 000 ₽/м²
Условия сделки
долевое участие (214-ФЗ)

Квартира забронирована

Застройщик может записать вас в очередь или подобрать похожую