Мы используем куки-файлы. Соглашение об использовании
Только на Циан
Общая площадь203 м²
Участок6 сот.
Материал домаПенобетонный блок
Этажей в доме2
Год постройки2024
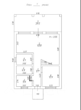
Мы предлагаем вам прекрасный двухэтажный коттедж площадью 203 м² на уютном участке в 6 соток. Это идеальное место для жизни, где каждый уголок продуман и комфортен. Описание: Первый этаж: • Просторный коридор • Уютная гостевая комната • Современная кухня-гостиная с выходом на веранду — идеальное место для семейных встреч! • Бойлерная и гардеробная для вашего удобства • Санузел Второй этаж: • Просторный коридор • Еще 4 комнаты — много места для вашей семьи! • Санузел Качество и комфорт: • Монолитная лестница • Утепленный потолок второго этажа • Энергоэффективные окна Rehau • Входная дверь с терморазрывом • Забор штакетник, откатные ворота с автоматикой • Скважина 80 м.p. • Подключены свет, газ, канализация Современные удобства: В доме уже разведено электричество, телевидение, интернет, водоснабжение и отопление с теплыми полами. Строительные материалы: • Надежный фундамент из монолитной плиты • Стены из газобетонных блоков Bonolit, облицованные кирпичом Braer • Кровля из металлочерепицы Преимущества локации: • Асфальтированные дороги по всему поселку • КПП с охраной и детская площадка • Всего 3 минуты на машине до города • В пешей доступности магазины Ozon, WB, Красно-белое и тд. По запросу можем прислать видеообзор на дом. Не упустите возможность сделать этот коттедж своим домом! Звоните, будем рады ответить на все ваши вопросы! Сохраните в закладки, чтобы не потерять наше объявление _ _ _ _ _ _ _ _ _ _ _ _ _ _ _ Возможно вы искали: купить дом, купить готовый дом, купить дом в московской области, купить дом в подмосковье, купить дом в подмосковье с коммуникациями, купить дом в раменском районе, купить дом от собственника, купить дом с коммуникациями, купить дом от юридического лица
Позвоните автору
Вам ответят на все вопросы

О доме

Площадь

203 м²

Материал дома

Пенобетонный блок

Состояние дома

Нужен ремонт

Количество этажей

2

Количество спален

5

Год постройки

2024

Об участке

Площадь

6 сот.

Категория земель

Земли населённых пунктов

Статус участка

Дачное некоммерческое партнерство

Коммуникации и удобства

Санузел

1 в доме

Канализация

Септик

Водоснабжение

Скважина

Отопление

Нет

Электричество

Есть

Газ

Магистральный по границе

Спросите умного помощника
Получите экспертное мнение о жилье

Расположение

Подпишитесь на объявления в этой локации
Мы сообщим, как только поблизости появится что‑нибудь новенькое
Ипотечный калькулятор
  • Базовая
  • Семейная
  • ИТ-ипотека
  • 20%
  • 30%
  • 40%
  • 50%
лет
  • 10 лет
  • 20 лет
  • 30 лет
Загружаем предложения от застройщика и банков
Хотите продать недвижимость?Разместите объявление на ЦианРазместить
17 800 000 ₽
Эксперт от ЦианаПомощь с поиском и сделкой
Цена за метр
87 685 ₽/м²
Агентство недвижимости
На Циан
4 года
Объектов в работе
187
Риелтор
Суперагент
1,0・1