Мы используем куки-файлы. Соглашение об использовании
Проверено в Росреестре
Общая площадь106,8 м²
Участок15 сот.
Материал домаДеревянный
Год постройки2023
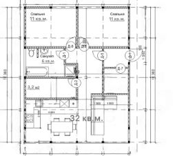
Ваша мечта о загородной жизни - в шаге от реальности! Представьте: утренний кофе на просторной веранде, запах соснового леса, тишина, пронизанная пением птиц... Это может стать вашей повседневностью! Мы предлагаем к продаже новый, современный дом и земельный участок в тихом и уютном поселке Тархановка, городской округ Шатура. Дом - это воплощение комфорта и стиля: * Каркасный, утеплен, общая площадь 106 кв.м (11х8 + веранда). * Качественные материалы: брус 150x150, свайный фундамент. * Внешняя отделка: фасадные панели под камень, планкен (лиственница) и террасная доска. * Просторная кухня-гостиная (32 кв.м), 2 уютные спальни (по 11 кв.м), санузел, котельная, холл, прихожая с гардеробной. * Дом на стадии внутренней отделки - создайте интерьер своей мечты! * Коммуникации заведены в дом: электроэнергия 15квт/380, скважина 15м, канализация-септик. Участок - идеальное место для отдыха: * Ровный, сухой, высокий, с отдельным круглогодичным подъездом. * По периметру участка установлены столбы для забора с использованием гравийно-песчаной засыпки и поперечные лаги. * Категория земель: земли населенных пунктов. * Разрешенное использование: для ведения личного подсобного хозяйства. * Рядом лес - грибы, ягоды, чистый воздух. * 7 минут до г. Шатура на автомобиле. * Поселок асфальтирован, планируется газификация. Дом строили для себя, с любовью и заботой о каждой детали. Продается в связи с изменением планов. Недвижимость в собственности. Свободная продажа. Заинтересовало? Звоните, покажем в любое удобное для Вас время!
Позвоните автору
Вам ответят на все вопросы

О доме

Площадь

106,8 м²

Материал дома

Деревянный

Состояние дома

Нужен ремонт

Год постройки

2023

Об участке

Площадь

15 сот.

Категория земель

Земли населённых пунктов

Статус участка

Личное подсобное хозяйство

Коммуникации и удобства

Санузел

1 в доме

Канализация

Септик

Водоснабжение

Скважина

Электричество

Есть

Газ

Нет

Спросите умного помощника
Получите экспертное мнение о жилье

Информация из Росреестра

Кадастровые номера участка 50:25:0030110:*** и здания 50:25:0030110:*** указал продавец

Данные получены 28 апреля 2025 года

Oб участке
Категория земель
Земли населенных пунктов
Разрешённое использование
"Для ведения личного подсобного хозяйства (приусадебный земельный участок)"
Обременение
Heт сведений
Читать дальше

Расположение

Подпишитесь на объявления в этой локации
Мы сообщим, как только поблизости появится что‑нибудь новенькое
Ипотечный калькулятор
  • Базовая
  • Семейная
  • ИТ-ипотека
  • 20%
  • 30%
  • 40%
  • 50%
лет
  • 10 лет
  • 20 лет
  • 30 лет
Загружаем предложения от застройщика и банков
Хотите продать недвижимость?Разместите объявление на ЦианРазместить
6 990 000 ₽
Эксперт от ЦианаПомощь с поиском и сделкой
Цена за метр
65 449 ₽/м²
Ипотека
возможна
Агентство недвижимости
Суперагент