Мы используем куки-файлы. Соглашение об использовании
Только на Циан
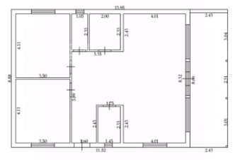
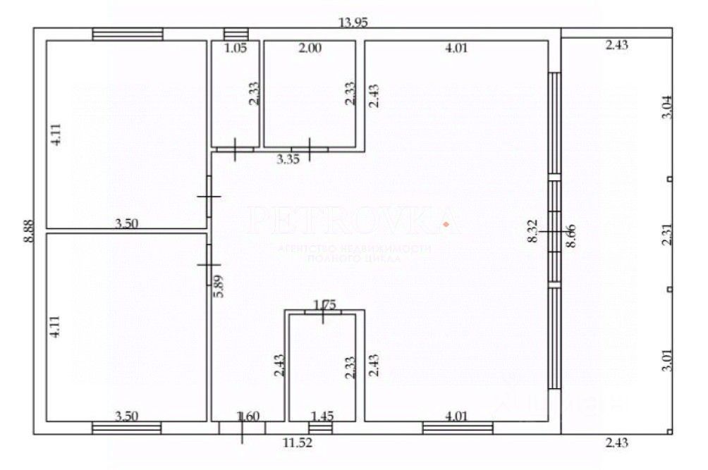
Общая площадь112,2 м²
Участок5 сот.
Материал домаГазобетонный блок
Этажей в доме1
Год постройки2025
Прекрасный вариант для круглогодичного проживания! Загородный дом находится в КП Салтыково Парк в одном из самых популярных коттеджных поселков Подмосковья! Дом из газобетона строился для себя, с использованием только качественных материалов, а также с соблюдением всех строительных норм и правил на каждом этапе строительства. Использовались только высокотехнологичные негорючие материалы. В доме: две спальни, прихожая, большая кухня-гостиная, 2 санузла и котельная. Внутренняя отделка дом выполнена в светлых тонах. Применены стильные дизайнерские решения. Установлена дверь с терморазрывом. Панорамные окна Veka создают атмосферу, располагающую к уюту и отдыху, наполняя светом пространство дома. Просторная терраса из лиственницы, на которой будет очень здорово собираться всей семьей теплыми летними вечерами для досуга и времяпрепровождения. Дом расположен на живописном правильном участке вблизи лесного массива. Площадь участка 5 соток. Площадь дома 112,2 кв.м. Все инженерные системы введены в эксплуатацию. Электричество (15 кВт), скважина (55 метров), септик на 4-6 человек, бойлер 100 л, установлена автоматика котельной - контроль температуры в доме. Отопление - водяной теплый пол по всему периметру. В санузле: керамогранит! Душевая закаленное стекло 8 мм. Высота в помещениях: 2,80 - 4,85 м. Установлены двери (200см) со звукоизоляцией, полы - влагостойкий ламинат, утепление 200 мм, стены 150 мм, потолок 250 мм. Соседи круглогодично проживают. Строительством занимался профессионал, который проходил обучение в Финляндии, поэтому за теплоту и уют зимой переживать не стоит! Отличная транспортная доступность: 45 км от МКАД! Вся необходимая инфраструктура рядом. Один собственник, оперативный выход на сделку, все документы готовы. Звоните сегодня, чтобы записаться на просмотр! Арт. 129897694
Позвоните автору
Вам ответят на все вопросы

О доме

Площадь

112,2 м²

Материал дома

Газобетонный блок

Количество этажей

1

Количество спален

2

Год постройки

2025

Об участке

Площадь

5 сот.

Статус участка

Дачное некоммерческое партнерство

Коммуникации и удобства

Санузел

В доме

Канализация

Есть

Водоснабжение

Скважина

Отопление

Электрическое

Электричество

Есть

Газ

Нет

Спросите умного помощника
Получите экспертное мнение о жилье

Расположение

Подпишитесь на объявления в этой локации
Мы сообщим, как только поблизости появится что‑нибудь новенькое
Ипотечный калькулятор
  • Базовая
  • Семейная
  • ИТ-ипотека
  • 20%
  • 30%
  • 40%
  • 50%
лет
  • 10 лет
  • 20 лет
  • 30 лет
Загружаем предложения от застройщика и банков
Хотите продать недвижимость?Разместите объявление на ЦианРазместить
12 000 000 ₽
Эксперт от ЦианаПомощь с поиском и гарантия безопасной сделки
Цена за метр
106 952 ₽/м²
Ипотека
возможна
Агентство недвижимости
Риелтор
Суперагент
5,0・1