Только на Циан
Новорязанское шоссе
53 км от МКАД
11 290 000 ₽
Прекрасный вариант для круглогодичного проживания!
Загородный дом находится в КП Салтыково Парк в одном из самых популярных коттеджных поселков Подмосковья!
Дом из газобетона строился для себя, с использованием только качественных материалов, а также с соблюдением всех строительных норм и правил на каждом этапе строительства. Использовались только высокотехнологичные негорючие материалы.
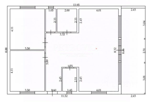
В доме: две изолированные спальни, прихожая, большая кухня-гостиная, 2 санузла и котельная.
Внутренняя отделка дом выполнена в светлых тонах. Применены стильные дизайнерские решения. Установлена дверь с терморазрывом. Панорамные окна Veka создают атмосферу, располагающую к уюту и отдыху, наполняя светом пространство дома.
Просторная терраса из лиственницы, на которой будет очень здорово собираться всей семьей теплыми летними вечерами для досуга и времяпрепровождения.
Дом расположен на живописном правильном участке вблизи лесного массива.
Площадь участка 5 соток.
Все инженерные системы введены в эксплуатацию. Электричество (15 кВт), скважина (55 метров), септик на 4-6 человек, бойлер 100 л, установлена автоматика котельной - контроль температуры в доме. Отопление - водяной теплый пол по всему периметру. В санузле: керамогранит! Душевая закаленное стекло 8 мм. Высота в помещениях: 2,80 - 4,85 м. Установлены двери (200см) со звукоизоляцией, полы - влагостойкий ламинат, утепление 200 мм, стены 150 мм, потолок 250 мм.
Соседи круглогодично проживают. Строительством занимался профессионал, который проходил обучение в Финляндии, поэтому за теплоту и уют зимой переживать не стоит!
Отличная транспортная доступность: 45 км от МКАД!
Вся необходимая инфраструктура рядом.
Один собственник, оперативный выход на сделку, все документы готовы.
Звоните сегодня, чтобы записаться на просмотр!
Арт. 136054875










































































