


655 100 ₽/м²
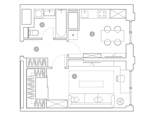
В продаже 1-спальная квартира с просторной кухней-гостиной и панорамным остеклением. Дополнительное преимущество - вид на закрытый благоустроенный двор жилого комплекса. Квартира с 1 спальней идеально подойдет для семейной пары или студента, а также станет отличным инвестиционным решением для тех, кто планирует сдавать жилье в аренду. Жилой комплекс бизнес+ класса СТОУН Грэйн находится на Юго-Западе Москвы в Обручевском районе. Расположение вблизи двух станций метро и ключевых транспортных магистралей обеспечивает быстрый доступ к центру столицы и соседним районам: - 2 мин. до м. "Калужская" и "Воронцовская" - Удобный выезд на ул. Обручева и ул. Профсоюзную - 2,5 км до Ленинского проспекта - 6 км до ТТК и МКАД - 10 км до Садового кольца и Рублёвского шоссе - 30 мин. на автомобиле до "Москва-Сити", Лужников и МГУ Проект расположен в районе с развитой образовательной и социальной базой. Рядом с жилым комплексом находятся ведущие вузы Москвы, лучшие детские сады и школы. Среди других особенностей - зеленое окружение, близость к Воронцовскому парку. Проект отличает выверенная архитектура от Kleinewelt Architekten. Башня А высотой в 45 этажей станет архитектурной доминантой с выразительными поясами балконов галерейного типа и эксклюзивными лотами со вторым светом. Камерная 20-этажная башня Б со скатной крышей будет включать двухуровневые квартиры с террасами. На закрытой благоустроенной территории разместятся игровые площадки для детей разных возрастов, workout-зона, павильоны для работы на открытом воздухе. Жители также смогут воспользоваться дополнительными зонами отдыха и инфраструктурой на территории, прилегающей к офисному кварталу класса А STONE Калужская. Комфортный микроклимат в квартирах обеспечивают современные инженерные решения. Для удобства жителей предусмотрен двухуровневый подземный паркинг на 270 машиномест. STONE - девелопер коммерческой и жилой недвижимости классов бизнес и премиум в Москве с 19-летним опытом. Сегодня занимает лидирующую позицию на офисном рынке (рейтинг РБК). В портфеле девелопера представлено 3 млн кв. м построенных, строящихся и проектируемых объектов, из которых более 1 млн кв. м находятся в стадии строительства. Компания имеет самый масштабный проектный портфель офисной недвижимости класса А на московском рынке (данные NF Group) и возглавляет топ устойчивых девелоперов, согласно исследованию FResearch - Forbes. В настоящий момент девелопером представлено 16 бизнес-центров класса А, а также 3 жилых комплекса бизнес+ класса. ID.29118
























































































