Первичная продажа



2 акции
сдача ГК: 3 кв. 2029 года
Калужская
8 минут пешком
31 643 920 ₽
677 600 ₽/м²
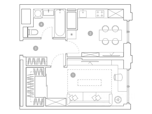
В продаже 1-спальная квартира с просторной кухней-гостиной и панорамным остеклением. Дополнительное преимущество - вид на тихий благоустроенный двор жилого комплекса. Квартира с 1 спальней идеально подойдет для семейной пары или студента, а также станет отличным инвестиционным решением для тех, кто планирует сдавать жилье в аренду.
Жилой комплекс бизнес+ класса СТОУН Грэйн находится на Юго-Западе Москвы в Обручевском районе. Расположение вблизи двух станций метро и ключевых транспортных магистралей обеспечивает быстрый доступ к центру столицы и соседним районам:
- 2 мин. до м. "Калужская" и "Воронцовская"
- Удобный выезд на ул. Обручева и ул. Профсоюзную
- 2,5 км до Ленинского проспекта
- 6 км до ТТК и МКАД
- 10 км до Садового кольца и Рублёвского шоссе
- 30 мин. на автомобиле до "Москва-Сити", Лужников и МГУ
Проект расположен в районе с развитой образовательной и социальной базой. Рядом с жилым комплексом находятся ведущие вузы Москвы, лучшие детские сады и школы. Среди других особенностей - зеленое окружение, близость к Воронцовскому парку.
Проект отличает выверенная архитектура от Kleinewelt Architekten. Башня А высотой в 45 этажей станет архитектурной доминантой с выразительными поясами балконов галерейного типа и эксклюзивными лотами со вторым светом. Камерная 20-этажная башня Б со скатной крышей будет включать двухуровневые квартиры с террасами.
На закрытой благоустроенной территории разместятся игровые площадки для детей разных возрастов, workout-зона, павильоны для работы на открытом воздухе. Жители также смогут воспользоваться дополнительными зонами отдыха и инфраструктурой на территории, прилегающей к офисному кварталу класса А STONE Калужская.
Комфортный микроклимат в квартирах обеспечивают современные инженерные решения. Для удобства жителей предусмотрен двухуровневый подземный паркинг на 270 машиномест.
STONE - девелопер коммерческой и жилой недвижимости классов бизнес и премиум в Москве с 19-летним опытом. С 2022 года занимает лидирующую позицию на офисном рынке (рейтинг РБК). Сегодня в портфеле девелопера представлено 3 млн кв. м построенных, строящихся и проектируемых объектов, из которых более 1 млн кв. м находятся в стадии строительства.
Компания имеет самый масштабный проектный портфель офисной недвижимости класса А на московском рынке (данные NF Group) и возглавляет топ-6 устойчивых девелоперов согласно исследованию F Research от Forbes.
В 2023 году частью стратегии по развитию компании стала диверсификация портфеля, в результате которой девелопер провел ребрендинг и запустил направления STONE Office и STONE Dom. В настоящий момент девелопером представлено 18 бизнес-центров класса А, а также 3 жилых комплекса бизнес+ класса.
ID.29258 Продается 1-комнатная квартира с отделкой от застройщика в районе Обручевский в Москве.




































































































































































