


367 418 ₽/м²
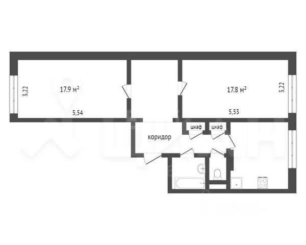
Редкое предложение! 2 комн.квартира 57.7м2 в монолитной башне 2001г.п. в 3 минутах ходьбы от метро, ТЦ, детского сада и школы! В продаже теплая светлая двухкомнатная квартира рядом с метро Братиславская на ул.Перерва д.39. Идеальный вариант для семей, ищущих квартиру в районе с развитой инфраструктурой в теплом монолитном доме с отличной шумоизоляцией! Теплые полы даже зимой. Описание квартиры: квартира расположена на 17-м этаже 25 -этажного монолитного дома, построенного в 2001 году. Общая площадь составляет 57.7 м2, из которых 29,9 м2 - жилая площадь: комнаты 18,1 м2 и 11.8м2 . В квартире косметический ремонт: обои теплых оттенков, ламинат, раздельный санузел в плитке, два застекленных балкона. В просторном функциональном коридоре 10,6 м2 встроенный гардеробный шкаф и есть пространство для установки второго большого встроенного шкафа .Окна выходят на восток и запад, вы будете наслаждаться потрясающими рассветами и закатами. Квартира продается с мебелью и бытовой техникой. Дом и двор: Монолитный дом, просторная входная группа, закрытая территория, видеонаблюдение и круглосуточная охрана в подъезде, наземная парковка, благоустроенный двор. Дружелюбные соседи. Транспортная доступность: до метро Братиславская 3 мин пешком. также недалеко метро Марьино , МЦД-2 Курьяново и Перерва Для владельцев авто удобный выезд на МСД и МКАД .25 мин до Центра города. Рядом автобусная остановка . Инфраструктура рядом: Развитая инфраструктура: школа, детский сад, поликлиника детская и взрослая, 2 торговых центра рядом, продуктовые магазины (Перекресток, Вкусвилл, Ашан), ледовый каток, открытый летний бассейн для жильцов дома в летний период, пункты выдачи известных маркетплейсов, также Парк им. Артёма Боровика, Парк Героев Отечественной войны 1812 года, Братиславский парк, Восточные Марьинские пруды и Парк имени 850-летия города Москвы. Условия продажи: Свободная продажа.1 взрослый собственник. Нет обременений. Вся сумма в договоре. Приглашаю Вас на просмотр этой чудесной квартиры. Купить 2-комнатную квартиру элитные на улице Перерва в Москве.
















































































