


517 100 ₽/м²
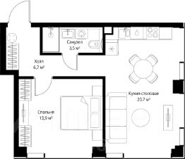
О квартире Продаётся двухкомнатная квартира общей площадью 64.99 кв. м. с отделкой на выбор: черновая, White Box. Квартира на 3 этаже корпуса 4.1 в жилом комплексе бизнес-класса "Среда на Кутузовском". До метро "Кунцевская" 10 минут пешком. Исторический зелёный район "Среда на Кутузовском" строится в Кунцево - историческом и экологически чистом районе Москвы. Здесь нет крупных производств, много лесных массивов и роза ветров, которая обеспечивает приток чистого воздуха. Район наполнен жизнью и уже развит: много детских садов и школ, поликлиники, магазины, кафе, спортивные объекты, парки. - 10 минут пешком до станции метро "Кунцевская". - 5-8 минут на машине до Кутузовского проспекта и Можайского шоссе и 10-15 минут до Рублёвского и МКАД. - 15 минут езды до Крылатских холмов, Суворовского парка и заказника "Долина реки Сетунь". О жилом комплексе "Среда на Кутузовском" - новый квартал с башнями от 12 до 44 этажей, окружённый лесными массивами и историческими усадьбами старой Москвы. Во внутреннем дворе есть водоём, многоуровневые зоны с детскими и спортивными площадками, коворкинг на свежем воздухе и локации для уединённого отдыха. Особенности - Архитектура с многослойными фасадами. - Квартиры с террасами и мастер-спальнями. - Окна в пол на всех этажах. - Общественные лаунж-гостиные. - Собственный ландшафтный парк во дворе. - Зоны барбекю и площадки для отдыха у воды. - Умный подземный паркинг. - Стрит-ритейл на первых этажах.





















































































































































