Арт. 132607849 ***Есть возможнocть оформить ипотeку от 11,90% нa эту квартиру***
Продается уютная 2х-комнатная квартира в развитом жилом комплексе "Бунинские Луга".
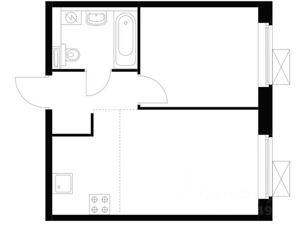
Общая площадь квартиры составляет 61 кв.м. Жилая площадь комнат (изолированные) - 12,7 кв.м. и 11,8 кв.м., просторная кухня-гостиная 20,3 кв.м., прихожая 9,8 кв.м.
В квартире 2 санузла: основной с ванной и гостевой. Высота потолков 2,7 м (натяжные). Ремонт от застройщика с обоями под покраску, что позволит создать собственный дизайн пространства каждой комнаты.
Планировка кухни-гостиной подходит для семейного времяпровождения или дружеских встреч. Линейная планировка квартиры. Каждая комната и кухня-гостиная оснащены кондиционерами Haier и новыми радиаторами отопления Danfos (Дания) с терморегуляторами. Кухня с дизайнерским гарнитуром, укомплектована встраиваемой техникой: посудомоечная машина и духовой шкаф фирмы Electrolux, индукционная варочная панель Zanusi, вытяжка Elica. Входная дверь от застройщика заменена на качественную и надежную.
Дом 2019 года постройки оснащен двумя лифтами (грузовой и пассажирский), кладовыми на минусовом этаже. Имеется противопожарная система.
Дворы "без машин" с разнообразными детскими площадками, столами для пинг-понга, природными горками, столиками для отдыха и беседками. Все дворы комплекса доступны по ключу собственника, имеется он-лайн домофон через мобильное приложение (работает даже с другого конца города). Подъезды располагаются на уровне земли, имеют сквозной вход как с улицы, так и со двора, оборудованы камерами.
Парковки: бесплатная наземная на территории жк, платная закрытая наземная, а также многоуровневая крытая за пределами ЖК (пешая доступность).
На территории ЖК: четыре детских сада и две школы, детская и взрослая поликлиники, скейт парк и PlayHab "Пирамиды". На первых этажах домов расположились многочисленные магазины (пятерочка, дикси, магнит, вкусвилл и т.д.), кафе, рестораны, салоны красоты и досуговые центры (йога, фитнес, школы борьбы, танцевальные и т.д.), что создает атмосферу "город в городе".
Транспортная доступность:
три ветки метро (м. Потапово, м. Бунинская аллея, м.Теплый стан)
Варшавское, Калужское шоссе и Филатовское шоссе, МКАД (10км)
ТЦ Бутово Молл, Мега Теплый стан, Глобус.
Рядом расположенные шикарные парки "Южное Бутово" с пляжными зонами, пирсами, новой спортивной площадкой и песчаным теннисным кортом позволят провести время на природе разнообразно и с удовольствием.
Документы готовы к сделке, один взрослый собственник. Полная стоимость в договоре. Возможна покупка в ипотеку от банков-партнеров по привлекательным ставкам. Оперативный показ.
Компания Самолет Плюс гарантирует своим клиентам безопасность сделки.
Звоните. 2-комнатная квартира (вторичный рынок) в Москве.