


261 508 ₽/м²
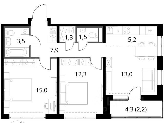
Квартира с кухней-гостиной и тремя спальнями в Квартале Герцена. Особенности планировки: вид во двор, второй санузел, гардеробная, мастер-спальня, постирочная, предчистовая отделка, терраса. Квартиру можно купить онлайн. В квартире выполнена отделка "под чистовую". Установлены окна с двойным стеклопакетом, радиаторы с терморегуляторами. На полу цементно-песчаная стяжка. В квартиры заведены кабели для интернета и ТВ. Входная сейф-дверь не требует замены. Организован поквартирный учёт энергоресурсов (водоснабжение, отопление, электричество). Квартал "Герцена" расположен в Бирюлёве Восточном — районе на юге Москвы. Дорога до ТТК займет всего полчаса на автомобиле, до станции метро и ж/д станции "Царицыно" — 13 минут, а до автовокзала "Южные ворота" — 20 минут. До автобусных остановок можно дойти пешком. В 2027-2028 году откроется новая станция метро "Лебедянская", дорога до неё займет всего 18 минут. Общая площадь "Квартала Герцена" составляет 27,3 га. Дома состоят из разноуровневых секций высотой от 6 до 55 этажей с видовыми террасами и балконами. На территории квартала будет построена поликлиника, детский сад на 350 мест и воспитательно-образовательный комплекс на 1075 мест, а также рестораны, клиники, магазины и салоны красоты. Объявление от застройщика. Ипотека, материнский капитал. Обмен — один из способов покупки. Обмен подойдёт, если вы хотите быстро поменять старую квартиру на новую. Получить ипотеку или рассрочку, а также обменять квартиру можно онлайн. Запишитесь на онлайн-презентацию по телефону или на сайте. квартиры в нашей базе: ГРЦ01.1-Ж2.2.5.
















































































































