


441 000 ₽/м²
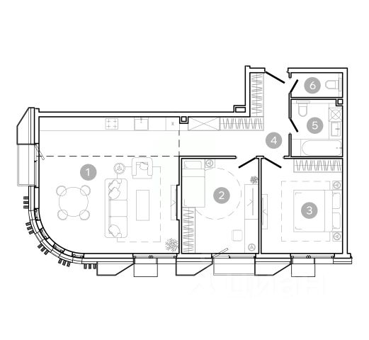
Продается 3-к квартира площадью 62.9 кв.м. на 2-м этаже УНО Соколиная Гора — новое поколение жилой недвижимости в историческом районе Москвы в непосредственной близости от Измайловского парка. Динамичная и современная архитектура формирует доминанту района и становится центром визуального притяжения, гармонично cочетая баланс между урбанистической энергией современной Москвы и спокойствием природы. Благодаря уникальной локации вся Москва будет для вас как на ладони удобные транспортные развязки, выезды на ключевые магистрали, метро и МЦК в шаговой доступности.


































































































