140 330 ₽/м²
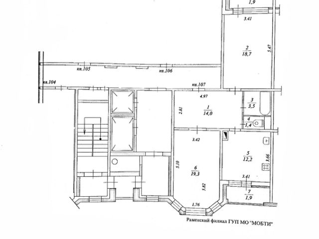
Продается 3-к квартира площадью 91.56 кв. м с черновой отделкой. Квартира расположена на 6 этаже 17 этажного дома, в 202 корпусе. "Малаховский" - жилой комплекс в Раменском районе Подмосковья, идеально подходящий для семей с детьми. Проект от федерального застройщика ГК "Развитие" находится в тихом и зеленом микрорайоне Родники и отличается удобной транспортной связью с Москвой и Люберцами. Три дома высотой 17 этажей с видами на озеро и парк, просторные квартиры, приватный двор-патио с ландшафтным дизайном и доступная инфраструктура обеспечат жителям новых квартир все преимущества городской жизни в живописном природном окружении. Транспортная доступность - Удобный выезд на Егорьевское шоссе и строящуюся магистраль МЕТК (Москва - Егорьевск - Тума - Касимов); - 18 км от МКАД; - 5 мин. до МЦД-3 "Удельная"; - 29 мин. до метро "Лермонтовский проспект". Архитектура Дома отличаются высокой тепло- и шумоизоляцией, долговечностью, высоким уровнем энергоэффективности и современным внешним видом. Фасады выполнены в спокойной цветовой гамме. Из окон с широкоформатным остеклением открываются виды на березовую рощу, озеро и зеленые дворы. Логичным продолжением архитектуры становятся просторные входные группы, где продумано всё: витражное остекление, высокие потолки, дизайнерская отделка, два выхода на обе стороны дома, а также современные лифты (грузовой и пассажирский) и колясочные. Планировочные решения Планировки комплекса "Малаховский" функциональны и эргономичны, что упрощает зонирование и расстановку мебели. Квартиры оснащены гардеробными, лоджиями с панорамным остеклением, двумя санузлами (даже в однокомнатных) и просторными прихожими. Высота потолков - 2,7 м. Квартиры сдаются с отделкой white box, которая позволит воплотить индивидуальный дизайн-проект по своему вкусу. Доступны варианты отделки "под ключ" с применением лучших дизайнерских материалов. Благоустройство В жилом комплексе тщательно продумана концепция благоустройства. Через всю территорию тянутся живописные прогулочные бульвары с ландшафтным дизайном и всесезонным озеленением. Рядом обустроено 3 современных детских площадки с мягким покрытием, а для взрослых предусмотрены уютные лаунж-зоны для общения, тихого отдыха и спорта на свежем воздухе. Двор каждого дома свободен от машин, а для дополнительного уюта и безопасности здесь установлено современное освещение. Естественным продолжением дворового ландшафта становится березовая роща с природными тропинками и небольшим водоемом, прилегающая к жилому комплексу. Инфраструктура и окружение - Наземный паркинг на 55 машино-мест и гостевая парковка; - Все повседневные сервисы (кафе, магазины, салоны красоты) прямо в вашем доме; - Фитнес-клуб, бассейн, спортивные площадки и велодорожки в многочисленных парках микрорайона Родники; - 2 школы, гимназия и детский сад в шаговой доступности; - ТЦ "Родники" с рестораном и супермаркетом; - Петропавловский парк с благоустроенным детским городком и волейбольной площадко
















































































