


516 480 ₽/м²
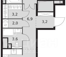
Продаётся 3-комнатная квартира для в ЖК HEADLINER, общей площадью 95,8 кв. м, на 2 этаже. Высота потолков 3 м. Это просторная, светлая квартира подойдет для большой семьи, в ней три полноценные спальни и кухня-гостиная. В квартире предусмотрено 2 санузла и 3 гардеробные комнаты. Окна в квартире выходят на разные стороны, также в квартире есть лоджия. В квартире выполнена предчистовая отделка White box. Дом сдан. Квартал HEADLINER находится в Пресненском районе ЦАО, рядом с м. "Шелепиха". В непосредственной близости Москва-Сити. Рядом находятся парк Причальный и Шелепихинская набережная. За 5-10 минут на автомобиле можно добраться до парков Фили, Красногвардейские пруды, Красная Пресня и парка Победы. В пешей досягаемости - ТРЦ "Афимолл Сити", ТРЦ "Филион", ТРЦ "Европейский", World Class, а также вся инфраструктура ММДЦ "Москва-Сити". На территории ЖК расположен филиал частной аккредитованной школы полного дня "Путь к успеху". В непосредственной близости расположены лучшие школы ЦАО: ГБОУ "Романовская школа", физико-математическая школа 56 им. академика В.А. Легасова, школа с углубленным изучением английского языка 1232 "На Кутузовском". Особенности ЖК: - Потрясающие видовые характеристики открываются на "Москва-Сити", Москву-реку и панораму центра столицы; - 8 минут пути до набережной Тараса Шевченко с живописными видами на Headliner и Деловой центр; - Разная высота корпусов: от 5 до 51 этажа с уникальным внешним видом; - Потолки от 3 м; - Доступны варианты как с отделкой white box, так и без нее; - 80% квартир имеют ширкоформатные окна; - Вместительный двухуровневый подземный паркинг с кладовыми; - Лаунж-зоны с каминами и стильной мебелью; - Колясочные и гостевые уборные; - Концепция "дворы без автомобилей"; - Консьерж-зоны в подъездах; - Видеонаблюдение, круглосуточная охрана.












































































































































