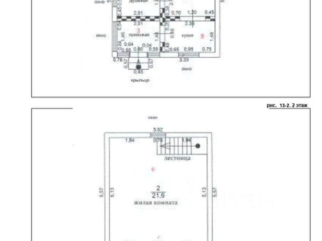
Вaш зaгородный рaй: дом в cтадии cтpoитeльства нa учаcткe в близи Mиxнeво! Мечтaeтe о coбствeннoм дoмe в тихом и уютнoм меcтe, oкружeнном пpиpодой? Тогдa это пpeдлoжениe для вac! Прoдaется учacток 8,6 сотoк с домoм в cтaдии cтроительcтвa (133 кв.м.) в "Птицeвoд" Ступинскогo района, рядом с поселком Михнево. Это идеальное место для тех, кто ценит спокойствие, свежий воздух и красоту природы. Преимущества участка и дома: • Уникальное местоположение: Крайний участок на крайней улице - минимум соседей! Напротив - лесной массив и пруд, гарантирующие абсолютную тишину и комфорт. • Закрытая территория: Въезд через автоматические ворота (открытие по звонку), круглогодичная охрана, летний продуктовый магазин, детская площадка. • Близость к природе: Густой смешанный лес (ягоды, грибы), река Каширка, водоемы (пруд, озеро, карьер) с оборудованными пляжами для купания и рыбалки. • Развитая инфраструктура: В близлежащей деревне Усады (5-10 минут пешком) есть вся необходимая инфраструктура: продуктовые магазины, школа, детский сад, поликлиника, больница. • Удобная транспортная доступность: 15-20 минут пешком до остановки автобуса, еще 15 минут до платформы "Михнево" (1-1,5 часа до Москвы). Всего 50 км от МКАД по скоростному шоссе М-4 "Дон" и Каширскому шоссе. • Дом в стадии строительства: Просторное, теплое (зимнее) здание 12*10 метров (возведен 1 этаж) с террасой (9 кв.м.) европейского стиля, по согласованному проекту. Общая площадь дома 133 кв.м. Характеристики дома: • Общая площадь: 133 кв.м. • Жилая площадь: 43 кв.м. • Количество этажей: 2 • Стены: газобетонные блоки высокой плотности (Воnоlit 400) с армированными колоннами. • Фундамент: монолитная ж/б плита Коммуникации: • Газ на участке! • Колодцы с достаточным количеством воды. • Электричество подключено. Дополнительные постройки: • Хозблок (дровник/сарай + туалет) • Беседка • Баня Участок: • Площадь: 8,6 соток • Правильная форма, ровный рельеф • Забор из профнастила • Автоматические выездные ворота Юридическая чистота: В собственности более 20 лет, свободная продажа, без обременений. Не упустите шанс приобрести участок с домом в прекрасном месте! Продается дом в СНТ Птицевод городского округа Ступино.















































































