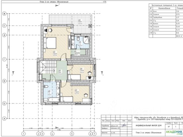
Продам кирпичный 2 х этажный дом для круглогодичного проживания, статус жилой дом, утеплённый 86 кв.м на участке 12 соток , со всеми коммуникациями в доме , водяное отопление , разводка по всему дому батареи, септик ,скважина , Эл во на 15 кв.т., участок правильной формы ,огорожен забором из профнастила , на участке отдельностоящая баня с душем ,хоз блок ,вольер для собаки оборудованный, и зона отдыха с мангалом и барбекю, на участке есть колодец ,есть летний водопровод ,в доме зимний водопровод, на участке растут туи, можжевельник, фруктовые деревья , смородина крыжовник, малина, клубника, виноград ,есть новая теплица поликарбонат с огурцами и помидорами, много цветов , пионы ,розы и тд. Выход с участка на две стороны ,с одной стороны в лес ,где много грибов и ягод, рядом пруд с песчаным дном , продуктовый магазин в деревне в 5 мин ходьбы, магазин верный и магнит в 2 км от СНТ Радуга, СНТ примыкает к деревне Душоново ,где вся развитая инфраструктура,магазины , аптека и тд ,. Охраняемая СНТ под шлакбаумом на пульте . Дом основательный на ленточном фундаменте, с толстыми стенами , на первом этаже ,летняя веранда , кухня , санузел с душевой кабиной, и комната гостинная , на втором этаже большая комната 30 кв.м ,которую можно перегородить на две комнаты и балкон, сделан косметический ремонт, продаем в связи с переездом хорошим людям. Ипотека возможна . Дом оформлен как жилой , участок в собственности,полная стоимость в ДКП , возможна прописка,но никто не зарегистрирован. Один взрослый собственник. Сопровождение сделки в подарок!!!! Возможна ипотека! Продажа домом с газом в селе Душоново Московской области.










































































