763 636 ₽/м²
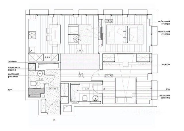
Продается евродвушка с дизайнерским ремонтом. Клубный дом на 46 апартаментов. Планировка: -Просторная кухня-гостиная -Изолированная спальня -Ванная комната -Гостевой санузел с душевой -Гардеробная комната в спальне, мини-кабинет с рабочим столиком, продуманные системы хранения в прихожей, спальне и кухне. 7 панорамных окон. Отличный вид на парк и город. Низкий налог на имущество - 23 000 руб. в год. Коммунальные платежи по счетчикам и базовым тарифам г. Москвы, как в квартирах. Полностью новый ремонт, никто не проживал. Над проектом работала известная и опытная дизайн студия, очень качественные строители. Сделана полная шумоизоляция по технологии АкустикГрупп потолков, стен и пола. Установлен умный дом с голосовым управлением от Алисы и с мобильного приложения: сценарии освещения, диммирование основным светом, управление шторами, регулирование температуры в гостиной, спальне, открывание/закрывание воды, кондиционирование и т.п. Заменены внутрипольные конвекторы отопления от застройщика и все инженерные системы, европейских брендов. Установлены датчики протечки на всю сантехнику и отопление, полная защита. В отделке использовались натуральные материалы: на полу инженерная доска Coswick формат французская ёлка с премиальной селекцией без сучков, крупноформатный керамогранит в душевой комнате итальянского производства Marazzi, кухонная столешница объединенная с фартуком натуральный кварцит. На стенах молдинги бельгийского производителя Orac, итальянская встраиваемая сантехника. Раскладной диван в гостиной, кровать с подъемным механизмом, продуманная кухня - все заказные позиции по дизайнерским эскизам. Установлена вся бытовая техника : духовой шкаф, холодильник, варочная панель, вытяжка, стиральная машина, телевизор. Оперативный выход на сделку. Продам квартиру, подойдёт для элитной жизни на улице 1-я Квесисская в Москве.







































































