


240 770 ₽/м²
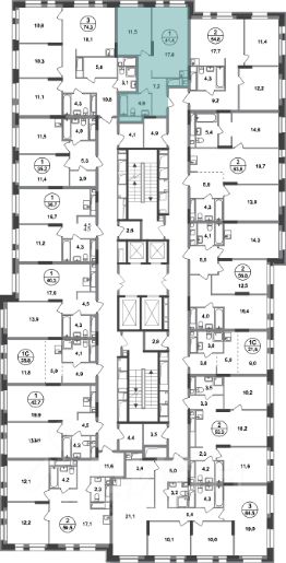
Продается четырехкомнатная квартира без отделки в 7 фазе города-парка "Первый Московский". Общая площадь квартиры - 102,4 кв. м, этаж 12 из 20. Срок сдачи - 1 квартал 2027 года. Тип дома - монолитный. Цена указана при 100% оплате. Новый корпус состоит из 3 секций: - 1 и 2 секции - с отделкой White Box с возможностью приобретения чистовой отделки за дополнительную плату - 3 секция - без отделки Город-парк "Первый Московский" расположен всего в 7 км по Киевскому шоссе (Новая Москва). Из города-парка прямой выезд на Киевское шоссе и трассу Солнцево-Бутово-Варшавское шоссе. ТРАНСПОРТНАЯ ДОСТУПНОСТЬ: - 5 мин. на личном автомобиле или 10 мин. на автобусе 189 и 147 до станции метро "Филатов Луг" - 25 мин. пешком до станции метро "Филатов Луг" ИНФРАСТРУКТУРА: Около 7 фазы запланировано строительство детского сада, школы, 2 многоуровневых паркингов. Также на территории проекта есть все необходимые объекты действующей социальной и бытовой инфраструктуры: 8 детских садов, 6 школ, ТЦ, магазины, паркинги, аптеки и др. БЛАГОУСТРОЙСТВО: - Дворы без машин - Игровые зоны для детей, зоны для занятия спортом, зоны для отдыха с навесами/качелями - Детские площадки разделены по возрастным группам - Пешеходный и веломаршрут с двухполосной велодорожкой 2,5 м в ширину - Озеленение с растениями всесезонного цветения ОСОБЕННОСТИ АРХИТЕКТУРЫ: В каждой секции 3 корпуса предусмотрены: - колясочные во входных группах - кладовые помещения с -1 по 20 этажи - коммерческие помещения на 1 этажах - по 4 лифта: 2 пассажирских, 2 грузовых - видеонаблюдение, установленное в холлах первых этажей, у подъездов и на прилегающей территории АВТОРСКИЙ ДИЗАЙН: Входные группы выполнены по авторскому дизайну, оснащены системой "тёплый пол". В каждой входной группе будет располагаться комфортабельная зона ожидания с мягким диваном, акцентными пуфами и столиком. Продам квартиру в ипотеку в микрорайоне Первый Московский в городе Московский.



































































































































































