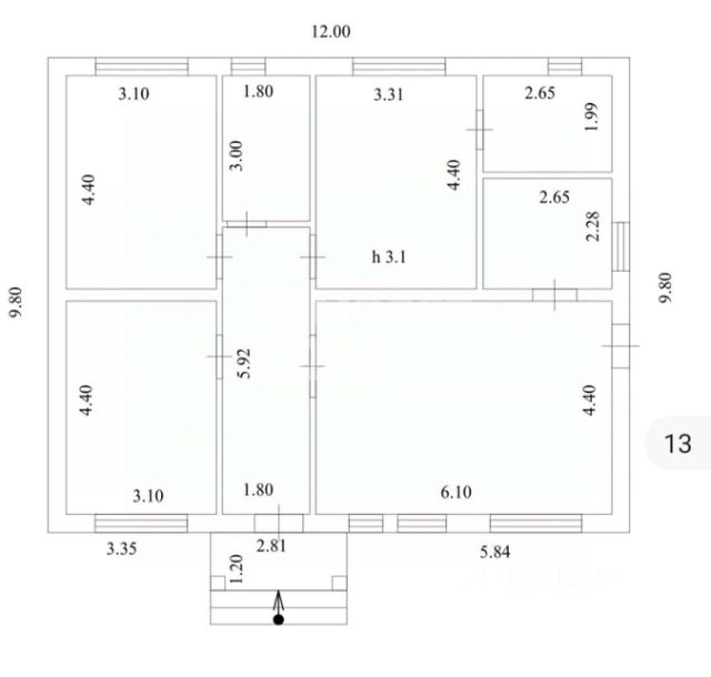
Предлагается к продаже дом 144 м² (каркас ) + участок 12 соток в ДНП. Электричество готово. Продается объект незавершенного строительства (готовность коробки) для вложения средств или личного строительства под ключ. Подробное описание: Дом: Каркасный, свежий, 2024 года постройки. Площадь: 144 м² (8 комнат свободной планировки). Конструктив: Каркас: 150 мм (несущая способность и возможность качественного утепления под любые климатические условия). Кровля: Ондулин (мягкий битумный лист) — гарантия гидроизоляции и шумоизоляции. Не гремит как металл, прост в ремонте. Окна: Стеклопакеты по всему периметру. Фундамент: Свайный (надежно, быстро, вентиляция подполья). Коммуникации: Электричество подведено к участку + заведено в дом (щиток). Участок: 12 соток, без забора (удобно для заезда техники), ровный. ГАЗ ПРОХОДИТ ПО ГРАНИЦЕ УЧАСТКА! Что требуется: Монтаж системы отопления, водоснабжения (скважина), канализации (септик), внутренняя отделка, утепление стен/кровли (при необходимости), установка забора. Почему стоит рассматривать: Энергоэффективность. Толщина каркаса 150 мм позволяет создать пирог утепления, соответствующий современным нормам теплосбережения. Акустический комфорт. Выбор ондулина в качестве кровельного покрытия избавит вас от шума во время осадков. Экономия ресурсов. Вы получаете готовую основу, не тратя время и деньги на возведение стен и кровли. Основные вложения — в инженерию и комфорт. Прозрачность. Вы видите все конструктивные элементы, можете заложить коммуникации в стены и перекрытия идеально под свой проект. Общественный транспорт находится в шаговой доступности, а рядом с участком есть магазин для удобства повседневных покупок. Звоните для просмотра! Отличный вариант для тех, кто хочет получить максимум контроля за вложенные средства.



















































































