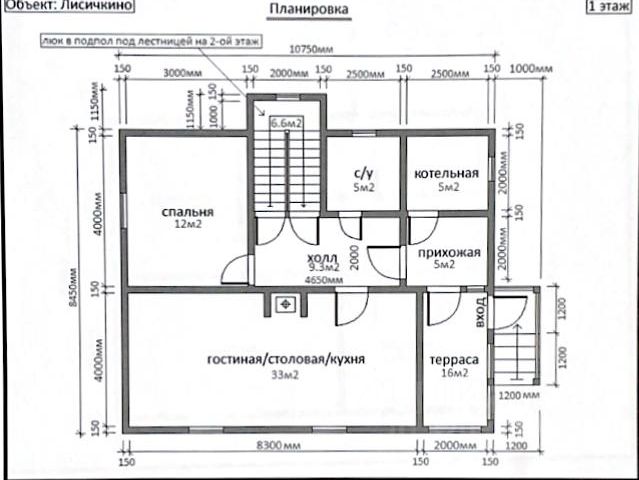
Продаётся загородный дом с банным комплексом и высоким инвестиционным потенциалом Предлагается к продаже стильный и просторный дом — идеальное сочетание комфортной загородной жизни и доходного актива. О доме: Продуманное пространство, объединяющее в себе уют, функциональность и эстетику. Дом отлично подойдёт как для личного проживания, так и для использования в формате арендного бизнеса высокого уровня. Особенности и преимущества: Просторная площадь с возможностью гибкого зонирования Современные планировочные решения Атмосфера уединения и загородного комфорта Зона отдыха: На территории реализован полноценный релакс-пространство: Традиционная баня для отдыха и восстановления Уличные чаны с подогревом — трендовый формат отдыха, востребованный круглый год Идеальное место для перезагрузки, приёма гостей и проведения уикендов Инвестиционная привлекательность: Объект отлично подходит под премиальную посуточную аренду Высокий спрос на формат дом + баня + чан Возможность получать стабильный доход с минимальным участием Дом сочетает в себе статус, комфорт и готовую бизнес-модель — редкое предложение на рынке. Купить загородную недвижимость в СНТ Лисичкино городского округа Ступино.














































































