Мы используем куки-файлы. Соглашение об использовании
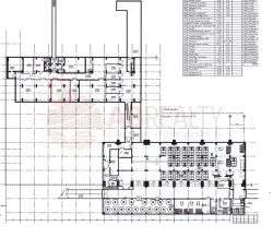
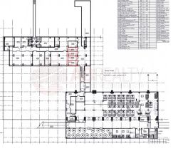
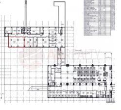
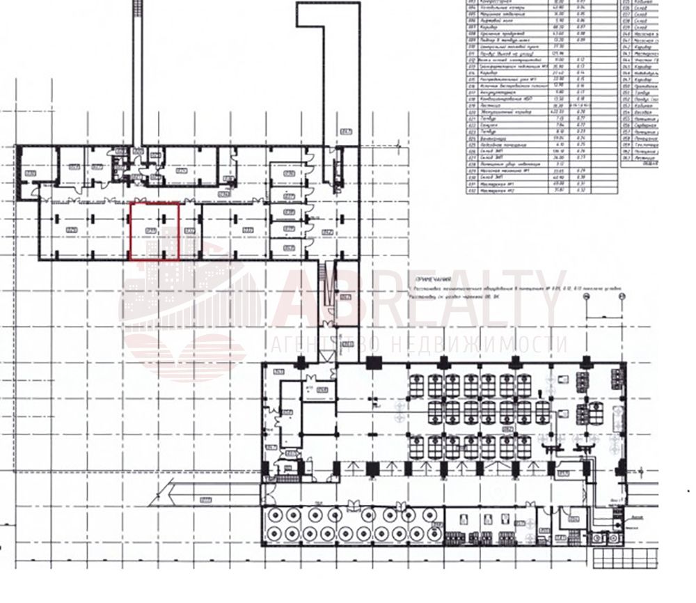
Площади136,1 – 236,9 м²
Этаж-1 из 5
Выс. потолков3.2 м.
ПомещениеСвободно
Отчёт о привлекательности объектаУзнайте, насколько помещение и район подходят для вашего бизнеса
Что входит в отчёт
  • Охват населения
  • Пешеходный трафик
  • Автомобильный трафик
  • Средний бюджет семьи по району
  • Арендные ставки рядом
  • Точки притяжения
  • Конкуренты в радиусе 1 км
  • Рекомендации по выбору места для бизнеса
Доступно 2 площади
136,1 м²
-1 этаж
161 434 ₽/мес.
14 233 ₽/м² в год
236,9 м²
-1 этаж
281 000 ₽/мес.
14 233 ₽/м² в год
БЕЗ КОМИССИИ! Аренда от собственника! В бизнес-парке Домодедовский сдаются складские помещения площадью 136,1 и 236,91 кв.м. 4 минуты от м. Домодедовская! -1 подвальный этаж. Высота потолков 3,2 м. Высота потолков до коммуникаций 2,5 м. Нагрузка на пол 2-2,5 т/кв.м. Вентиляция общеобменная, охлаждение и нагрев. Круглосуточная охрана, видеонаблюдение. Система контроля доступа. Локация: ЮАО, район Орехово-Борисово. Удобный заезд с дублера Каширского шоссе. Прямой договор с собственником! Предоставляется юридический адрес БЕЗ скрытых платежей и комиссий! Цена указана с учетом НДС и эксплуатационных расходов. Электричество, отопление, интернет, телефон, уборка оплачиваются отдельно. Звоните и записывайтесь на просмотр!
lock

Войдите или зарегистрируйтесь
для просмотра информации

Просматривайте условия сделки и всю информацию об объекте
Сохраняйте фильтры в поиске и не вводите заново
Доступ к избранному с любого устройства
Неограниченное добавление в избранное
Позвоните автору
Вам ответят на все вопросы
Остались вопросы по объявлению?
Позвоните владельцу объявления и уточните необходимую информацию.
  • Инфраструктура
  • Похожие рядом
Помощь надёжных риелторов
Риелтор партнёр Циан поможет купить или продать любую недвижимость
Агентство недвижимости
Суперагент
161 434 – 281 000 ₽/мес.

Прямая аренда (от года), минимальный срок аренды 11 месяцев, доступны арендные каникулы, обеспечительный платёж 322868 ₽, предоплата за 1 месяц

от 2 178 до 3 790 $/мес.
от 1 905 до 3 317 €/мес.
Цена за метр
от 14 234 ₽ в год
Налог
НДС включен: 50 672 ₽
Комиссия
нет
Коммунальные платежи
не включены
Эксплуатационные расходы
включены
Агентство недвижимости
Суперагент
На Циан
11 лет
Объектов в работе
более 1000