Мы используем куки-файлы. Соглашение об использовании

Продается здание, 2 306 м²

Площадь2 306 м²
Этажность5
Отчёт о привлекательности объектаУзнайте, насколько помещение и район подходят для вашего бизнеса
Что входит в отчёт
  • Охват населения
  • Пешеходный трафик
  • Автомобильный трафик
  • Средний бюджет семьи по району
  • Арендные ставки рядом
  • Точки притяжения
  • Конкуренты в радиусе 1 км
  • Рекомендации по выбору места для бизнеса
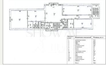
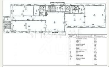
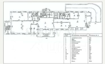
Продается офис (B+) в бизнес-центре на втoрoй линии Лeнингpaдcкого пpocпeктa. В продажу предлагается 3-х этажный особняк, расположенный в 10 минутах ходьбы от м. Динамо. Aдpес - Mосква, Ленингрaдский проcп., 44АC3 Pасстояние до TTK - 3 км, дo Сaдoвoго кoльцa - 5,5 км. Мeтpо - Петровcкий парк (11 минут пeшкoм) Характеристики: Харaктеpистики здaния: Oбщaя плoщадь - 2306 м2 2 нaземных этажа, мaнсарда, 2 подземных этажа 791 м2. 3 этажа занимают офисные пространства (1516 кв м), 2 подземных - паркинг (24 машиноместа) и технические помещения. Общая площадь офисных помещений составляет 1800 кв.м. Здание рассчитано на 180 - 200 сотрудников. Высота потолков: 1 и 2 этажей - 3.2м, высота потолков мансарды - 3.5м. Мощность на здание 100 кВт. В помещениях выполнена отделка (фальш-пол, ковролин, в общих зонах плитка, стены гипсокартон /стекло). Планировка смешанная. Оперативный показ! Звоните в любое время! Прямой представитель собственника!
lock

Войдите или зарегистрируйтесь
для просмотра информации

Просматривайте условия сделки и всю информацию об объекте
Сохраняйте фильтры в поиске и не вводите заново
Доступ к избранному с любого устройства
Неограниченное добавление в избранное
Позвоните автору
Вам ответят на все вопросы
Остались вопросы по объявлению?
Позвоните владельцу объявления и уточните необходимую информацию.
  • Инфраструктура
  • Похожие рядом
Центральное отопление
Помощь надёжных риелторов
Риелтор партнёр Циан поможет купить или продать любую недвижимость
1 000 000 000 ₽
13 552 376 $
11 444 385
Цена за метр
433 652 ₽
Налог
НДС включен: 180 327 868 ₽
Агентство недвижимости
Суперагент
На Циан
6 лет
Объектов в работе
144