Мы используем куки-файлы. Соглашение об использовании
Торговая площадь, 352,1 м²
Площадь352,1 м²
Этаж1 из 17
Отчёт о привлекательности объектаУзнайте, насколько помещение и район подходят для вашего бизнеса
Что входит в отчёт
  • Охват населения
  • Пешеходный трафик
  • Автомобильный трафик
  • Средний бюджет семьи по району
  • Арендные ставки рядом
  • Точки притяжения
  • Конкуренты в радиусе 1 км
  • Рекомендации по выбору места для бизнеса
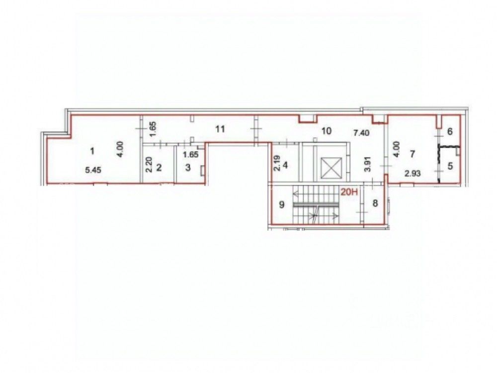
Лот 152460. Продажа помещения в ЖК бизнес-класса "Большая Семерка", Москва, ул. Краснобогатырская, 40к7. Ближайшая станция метро Преображенская площадь - 15 минут пешком. ЖК на 808 квартир на 2000 жильцов, состоит из 7 монолитных корпусов на стилобате с нежилыми помещениями и подземной автостоянкой. ЖК веден в эксплуатацию в 2024 году. Торговое окружение: Пятёрочка, Супер Лента, Пальчики, Аптека, ОЗОН, Wildberries, Ветклиника, Фитнес клуб и другие. Технические характеристики: 1-й этаж 17-этажного жилого дома. Общая площадь помещения - 352.1 м2 из которых на первом этаже 147,4 м2, цоколь 91,9 м2 и склад/погрузка в паркинге - 112,9 м2. Есть подъемник. Два отдельных входа. Свободная планировка, состояние помещения без отделки, в бетоне. Высота до потолка 3,5м. Большие витринные окна со стороны фасада и со стороны торца. Форматное помещение с технологической вытяжкой и большой выделенной мощностью. Коммерческие условия: Цена помещения: 100 000 000 руб с НДС. Стоимость за 1 кв.м: 284 000 руб
lock

Войдите или зарегистрируйтесь
для просмотра информации

Просматривайте условия сделки и всю информацию об объекте
Сохраняйте фильтры в поиске и не вводите заново
Доступ к избранному с любого устройства
Неограниченное добавление в избранное
Позвоните автору
Вам ответят на все вопросы
Остались вопросы по объявлению?
Позвоните владельцу объявления и уточните необходимую информацию.
  • Инфраструктура
  • Похожие рядом
  • Общая площадь352,1 м²
Помощь надёжных риелторов
Риелтор партнёр Циан поможет купить или продать любую недвижимость
100 000 000 ₽
1 395 323 $
1 200 517
Цена за метр
284 011 ₽
Налог
НДС включен: 18 032 786 ₽
Агентство недвижимости
Документы проверены
На Циан
9 лет
Объектов в работе
более 1000
Риелтор