Мы используем куки-файлы. Соглашение об использовании
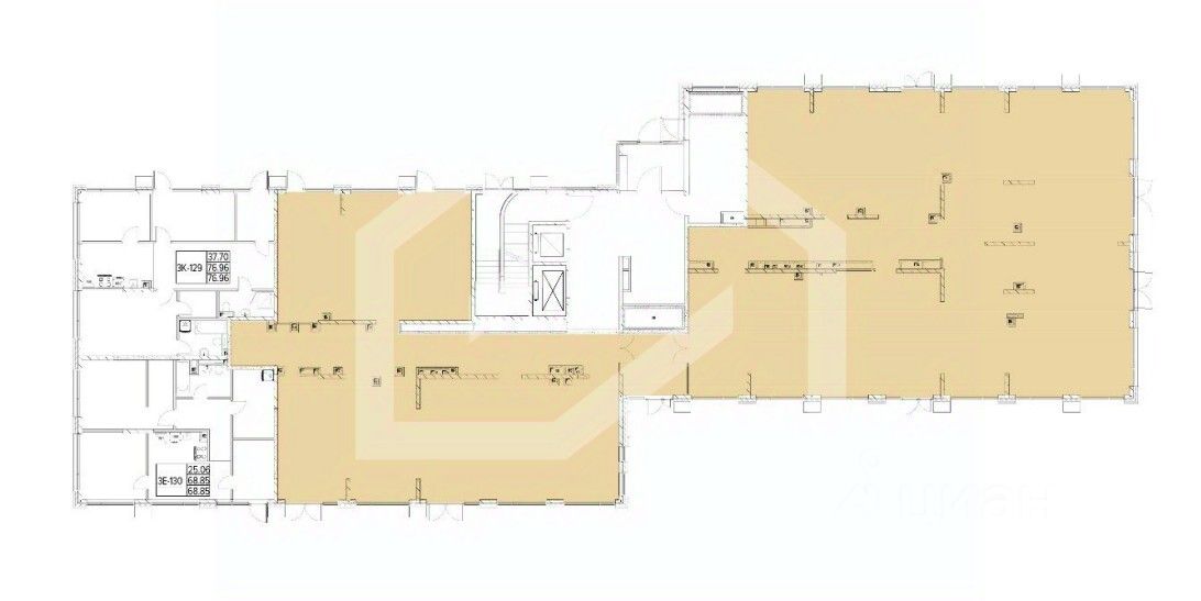
Помещение свободного назначения, 574,5 м²

Продается помещение свободного назначения, 574,5 м²

Площадь574,5 м²
Этаж1 из 13
Отчёт о привлекательности объектаУзнайте, насколько помещение и район подходят для вашего бизнеса
Что входит в отчёт
  • Охват населения
  • Пешеходный трафик
  • Автомобильный трафик
  • Средний бюджет семьи по району
  • Арендные ставки рядом
  • Точки притяжения
  • Конкуренты в радиусе 1 км
  • Рекомендации по выбору места для бизнеса
901415. Предлагаем помещение свободного назначения в ЖК "Champine", площадью 574.5 кв. м, расположенное на первом этаже 13-этажного жилого дома. Без комиссии для покупателя. Преимущества объекта: -ЖК состоит из 3 корпусов переменной этажности (от 8 до 13 этажей), рассчитанных на 238 квартир; -первая линия ул. Сосинская; -шаговая доступность от станции метро Волгоградский проспект (6 минут пешком); -удобная транспортная доступность: 430 м до Волгоградского проспекта, 2.2 км до ТТК, 4 км до ЮВХ; -плотный жилой массив; -развитая инфраструктура района; -высокий автомобильный и пешеходный трафик; -отлично просматривается, находится в легком доступе для потенциальных клиентов; -гибкая планировка, позволяющая адаптировать пространство под различные нужды; -вытяжка под общепит; -витринное остекление; -возможность размещения вывески; -наземная парковка. Технические параметры объекта: -9 отдельных входных групп. -электрическая мощность: 75 кВт. -высота потолков: 5.7 м. Свяжитесь с нами для получения дополнительной информации!
lock

Войдите или зарегистрируйтесь
для просмотра информации

Просматривайте условия сделки и всю информацию об объекте
Сохраняйте фильтры в поиске и не вводите заново
Доступ к избранному с любого устройства
Неограниченное добавление в избранное
Позвоните автору
Вам ответят на все вопросы
Остались вопросы по объявлению?
Позвоните владельцу объявления и уточните необходимую информацию.
  • Инфраструктура
  • Похожие рядом
  • ДевелоперTOUCH
  • Тип зданияЖилой комплекс
  • Общая площадь574,5 м²
Помощь надёжных риелторов
Риелтор партнёр Циан поможет купить или продать любую недвижимость
231 000 000 ₽
3 236 587 $
2 760 213
Цена за метр
402 089 ₽
Налог
НДС включен: 41 655 737 ₽
Агентство недвижимости
Документы проверены