Мы используем куки-файлы. Соглашение об использовании
Помещение свободного назначения, 450,5 м²

Продается помещение свободного назначения, 450,5 м²

Площадь450,5 м²
Этаж-2 из 5
Отчёт о привлекательности объектаУзнайте, насколько помещение и район подходят для вашего бизнеса
Что входит в отчёт
  • Охват населения
  • Пешеходный трафик
  • Автомобильный трафик
  • Средний бюджет семьи по району
  • Арендные ставки рядом
  • Точки притяжения
  • Конкуренты в радиусе 1 км
  • Рекомендации по выбору места для бизнеса
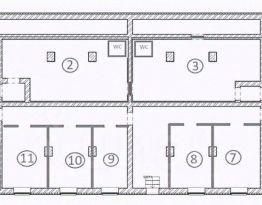
СОБСТВЕННИКИ! Предлагается к продаже помещение свободного назначения площадью 450,5 м2 в подвале жилого дома. 100% площадей сдано в аренду! МАП - 679 000 руб. Характеристики объекта: - отдельный вход с улицы; - полноценные окна; - кабинетная планировка; - высота потолков 2,7 м; - эл.мощность 60 кВт; - несколько мокрых точек; - центральные коммуникации; - УК - ГБУ Жилищник; - свежий ремонт. Помещение находится в 13 минутах ходьбы от МЦД Рабочий поселок, станций метро Кунцевская, Молодежная. Рядом с домом - остановка общественного транспорта. Плотный жилой массив, ведется активная застройка новых ЖК.
lock

Войдите или зарегистрируйтесь
для просмотра информации

Просматривайте условия сделки и всю информацию об объекте
Сохраняйте фильтры в поиске и не вводите заново
Доступ к избранному с любого устройства
Неограниченное добавление в избранное
Позвоните автору
Вам ответят на все вопросы
Остались вопросы по объявлению?
Позвоните владельцу объявления и уточните необходимую информацию.
  • Инфраструктура
  • Похожие рядом
  • Тип зданияСвободное
  • Общая площадь450,5 м²
Помощь надёжных риелторов
Риелтор партнёр Циан поможет купить или продать любую недвижимость
РиелторАртем Ченцов
Суперагент
  • 6 лет 7 месяцев на Циане
  • 70 объявлений
  • 65 000 000 ₽
    871 070 $
    739 564
    Цена за метр
    144 285 ₽
    Налог
    НДС не включен
    РиелторАртем Ченцов
    Суперагент