Мы используем куки-файлы. Соглашение об использовании

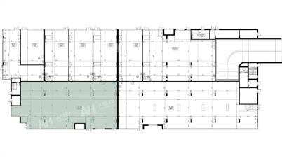
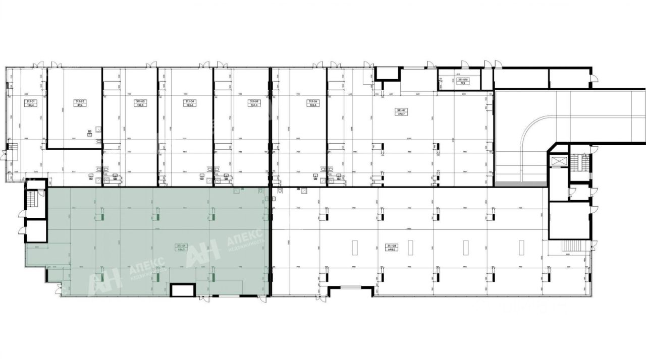
Продается арендный бизнес, 486,9 м²

Площадь486,9 м²
Этаж1
КатегорияТорговая площадь, свободное назначение, стрит ритейл и еще 1 категория...
Отчёт о привлекательности объектаУзнайте, насколько помещение и район подходят для вашего бизнеса
Что входит в отчёт
  • Охват населения
  • Пешеходный трафик
  • Автомобильный трафик
  • Средний бюджет семьи по району
  • Арендные ставки рядом
  • Точки притяжения
  • Конкуренты в радиусе 1 км
  • Рекомендации по выбору места для бизнеса
Лот 945346-Г Предложение от Собственника! Возможно использовать как арендный бизнес. Делимся комиссией с коллегами! Предлагается к приобретению коммерческое помещение свободного назначения общей площадью 486,9 м². Помещение расположено на одном этаже, высота потолков составляет 5,04 метра. Объект обладает значительной разрешенной мощностью — 147,0 кВт, оснащен системой вентиляции и имеет три входа. Отделка в помещении отсутствует, витринное остекнение не предусмотрено. Застройщик А101 предоставляет уникальные условия финансирования. Доступна ипотека на коммерческие помещения со ставкой от 4,5% годовых, а также специальное предложение с возвратом ипотеки 1,01%. Первоначальный взнос начинается от 30%. Объект находится в строящемся жилом районе "Прокшино" в юго-западной части Москвы, в 500 метрах от одноименной станции метро. Район обладает развитой инфраструктурой, включающей будущие крупные торгово-офисный и спортивно-развлекательный комплексы. Помещения в кластере представлены в различных форматах, что позволяет реализовать любой бизнес-проект. Транспортная доступность обеспечивается близостью к станции метро "Прокшино". Выезд на Соловьиный проезд находится в 100 метрах, обеспечивая удобный выезд на Калужское и Киевское шоссе, а также на МКАД. Срок сдачи объекта запланирован на четвертый квартал 2027 года. Чтобы получить ПОДРОБНУЮ ПРЕЗЕНТАЦИЮ С ПЛАНИРОВКОЙ И ФОТОГРАФИЯМИ, звоните или отправьте свой email и номер телефона в сообщении на портале. Высылаем в течение 15 минут по запросу! Уважаемые коллеги, мы работаем по этому объекту с посредниками и делимся комиссией в соответствии с нашей партнерской программой! Конт. лицо: НОВОСТРОЙКИ , доб. 211, ЛОТ 945346-Г
lock

Войдите или зарегистрируйтесь
для просмотра информации

Просматривайте условия сделки и всю информацию об объекте
Сохраняйте фильтры в поиске и не вводите заново
Доступ к избранному с любого устройства
Неограниченное добавление в избранное
Позвоните автору
Вам ответят на все вопросы
Остались вопросы по объявлению?
Позвоните владельцу объявления и уточните необходимую информацию.
  • Инфраструктура
  • Похожие рядом
Помощь надёжных риелторов
Риелтор партнёр Циан поможет купить или продать любую недвижимость
177 465 312 ₽
2 486 502 $
2 120 529
Цена за метр
364 480 ₽
Налог
НДС включен: 32 001 941 ₽
Агентство недвижимости
На Циан
17 лет
Объектов в работе
более 5000