Мы используем куки-файлы. Соглашение об использовании
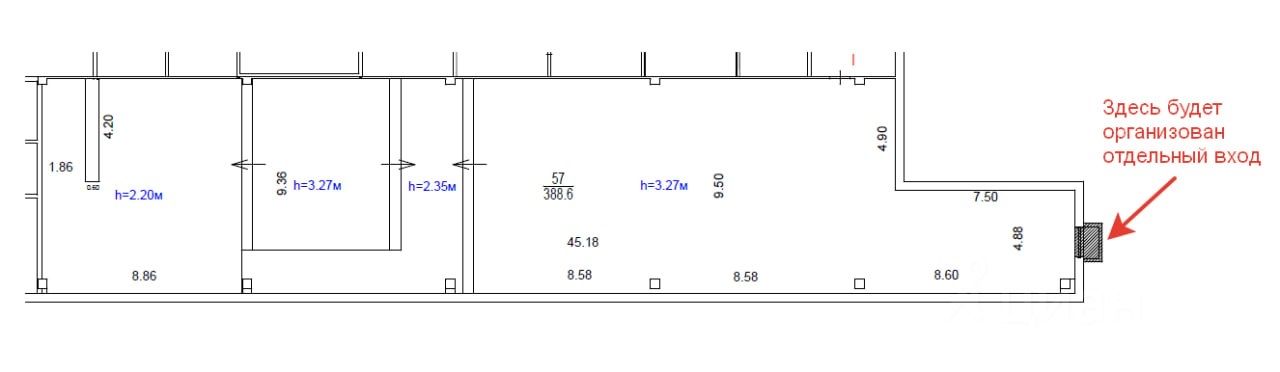
Помещение свободного назначения, 388,6 м²

Продается помещение свободного назначения, 388,6 м²

Площадь388,6 м²
Этаж-1 из 2
Отчёт о привлекательности объектаУзнайте, насколько помещение и район подходят для вашего бизнеса
Что входит в отчёт
  • Охват населения
  • Пешеходный трафик
  • Автомобильный трафик
  • Средний бюджет семьи по району
  • Арендные ставки рядом
  • Точки притяжения
  • Конкуренты в радиусе 1 км
  • Рекомендации по выбору места для бизнеса
В собственности физ. лица. Торговое помещение. Отдельный вход с торца магазина Перекресток в процессе согласования Высота потолка 3,3 метра. Все коммуникации - свет, вода, отопление, канализация. Ближайшие станции метро- Царицыно, Пражская и Домодедовская. Помещение свободного назначения, под любой вид деятельности.
lock

Войдите или зарегистрируйтесь
для просмотра информации

Просматривайте условия сделки и всю информацию об объекте
Сохраняйте фильтры в поиске и не вводите заново
Доступ к избранному с любого устройства
Неограниченное добавление в избранное
Позвоните автору
Вам ответят на все вопросы
Остались вопросы по объявлению?
Позвоните владельцу объявления и уточните необходимую информацию.
  • Инфраструктура
  • Похожие рядом
  • Площадь участка0 сот.
  • Общая площадь388,6 м²
Помощь надёжных риелторов
Риелтор партнёр Циан поможет купить или продать любую недвижимость
РиелторНикита Ястребков
Суперагент
  • 4,6・9
  • 19 лет 3 месяца на Циане
  • 13 объявлений
  • 33 500 000 ₽
    463 029 $
    398 458
    Цена за метр
    86 207 ₽
    Налог
    УСН
    РиелторНикита Ястребков
    Суперагент