Мы используем куки-файлы. Соглашение об использовании
Помещение свободного назначения, 2 812 м²
Площадь2 812 м²
Этаж1 из 4
ПомещениеСвободно
Отчёт о привлекательности объектаУзнайте, насколько помещение и район подходят для вашего бизнеса
Что входит в отчёт
  • Охват населения
  • Пешеходный трафик
  • Автомобильный трафик
  • Средний бюджет семьи по району
  • Арендные ставки рядом
  • Точки притяжения
  • Конкуренты в радиусе 1 км
  • Рекомендации по выбору места для бизнеса
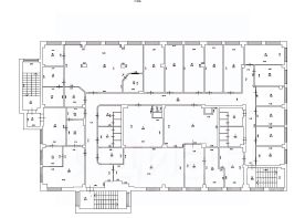
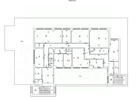
РАБОТАЕМ С АГЕНТАМИ И ПЛАТИМ! РЕНТАВИК— участник ассоциации агентств КОКОН. Готовый арендный бизнес (ГАБ). Доходность 10%, окупаемость до 10.49 лет. Административное отдельно стоящее здание. Две минуты пешком от действующей станции метро Яхромская. Огороженная территория. Центральные коммуникации. Налоговая: 13. Лифты: Нет. Вентиляция: Приточно-вытяжная. Кондиционирование: Центральное. Безопасность: Круглосуточная охрана, Контроль доступа, Система пожаротушений, Видеонаблюдение. Парковка: Наземная. Описание помещения: Три отдельных входа. Выделенная мощность - 180 кВт. 1 этаж - 808,7 м2, высота потолков 3,13 м. 2 этаж - 750,3 м2, высота потолков 3,25 м. 3 этаж - 766,2 м2, высота потолков 3,25 м. Тех. этаж - 379,3 м2. Планировка: кабинетная. Типовой ремонт. Высота потолка: 3.25м. Тип налогообложения: НДС не облагается. Кол-во парковочных мест: 30. Лот 60106-87
lock

Войдите или зарегистрируйтесь
для просмотра информации

Просматривайте условия сделки и всю информацию об объекте
Сохраняйте фильтры в поиске и не вводите заново
Доступ к избранному с любого устройства
Неограниченное добавление в избранное
Позвоните автору
Вам ответят на все вопросы
Остались вопросы по объявлению?
Позвоните владельцу объявления и уточните необходимую информацию.
  • Инфраструктура
  • Похожие рядом
Помощь надёжных риелторов
Риелтор партнёр Циан поможет купить или продать любую недвижимость
340 000 000 ₽
4 470 538 $
3 793 559
Цена за метр
120 911 ₽
Налог
НДС включен: 61 311 475 ₽
Агентство недвижимости
Риелтор
Суперагент
5,0・2