Мы используем куки-файлы. Соглашение об использовании
Помещение свободного назначения, 770,7 м²
Площадь770,7 м²
Этаж1 из 25
Отчёт о привлекательности объектаУзнайте, насколько помещение и район подходят для вашего бизнеса
Что входит в отчёт
  • Охват населения
  • Пешеходный трафик
  • Автомобильный трафик
  • Средний бюджет семьи по району
  • Арендные ставки рядом
  • Точки притяжения
  • Конкуренты в радиусе 1 км
  • Рекомендации по выбору места для бизнеса
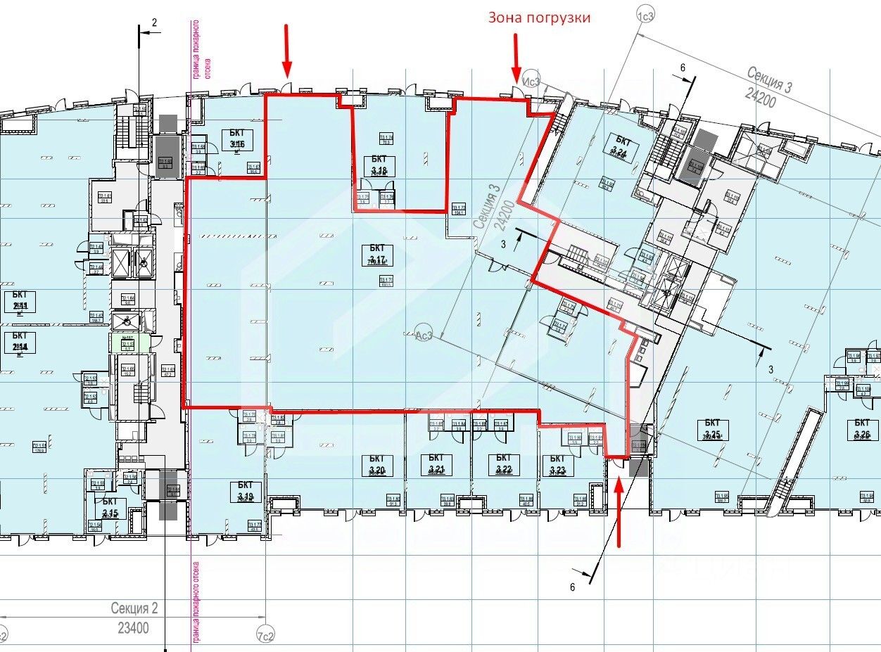
1091679. Предлагаем помещение свободного назначения в ЖК "1-й Саларьевский", площадью 770.7 кв. м, расположенное на первом этаже 25-этажного жилого дома. Корпус 6, секция 1. Без комиссии для покупателя. Преимущества объекта: -ЖК состоит из 3 корпусов переменной этажности (от 24 до 25 этажей), рассчитанных на 1 788 квартир; -10 минут пешком от станции метро "Саларьево"; -удобная транспортная доступность: 2.5 км до Киевского шоссе, 3 км до Филимонковского шоссе, 4 км до Филатовского шоссе и МКАД; -плотный жилой массив; -развитая инфраструктура района; -рядом ТРЦ "Саларис"; -высокий автомобильный и пешеходный трафик; -отлично просматривается, находится в легком доступе для потенциальных клиентов; -гибкая планировка, позволяющая адаптировать пространство под различные нужды; -витринное остекление; -возможность размещения вывески; -наземная парковка; -рядом остановка общественного транспорта. Технические параметры объекта: -отдельный вход с фасада; -электрическая мощность: 154 кВт. -высота потолков: 4.8 м. Ввод объекта в эксплуатацию - 2 квартал 2027 г. Свяжитесь с нами для получения дополнительной информации!
lock

Войдите или зарегистрируйтесь
для просмотра информации

Просматривайте условия сделки и всю информацию об объекте
Сохраняйте фильтры в поиске и не вводите заново
Доступ к избранному с любого устройства
Неограниченное добавление в избранное
Позвоните автору
Вам ответят на все вопросы
Остались вопросы по объявлению?
Позвоните владельцу объявления и уточните необходимую информацию.
  • Инфраструктура
  • Похожие рядом
  • Тип зданияЖилой комплекс
  • Общая площадь770,7 м²
Помощь надёжных риелторов
Риелтор партнёр Циан поможет купить или продать любую недвижимость
299 163 481 ₽
4 191 638 $
3 574 697
Цена за метр
388 172 ₽
Налог
НДС не включен
Агентство недвижимости
Документы проверены