Мы используем куки-файлы. Соглашение об использовании
Площадь3 950 м²
Этаж1 из 7
ПомещениеСвободно
КлассB+
Отчёт о привлекательности объектаУзнайте, насколько помещение и район подходят для вашего бизнеса
Что входит в отчёт
  • Охват населения
  • Пешеходный трафик
  • Автомобильный трафик
  • Средний бюджет семьи по району
  • Арендные ставки рядом
  • Точки притяжения
  • Конкуренты в радиусе 1 км
  • Рекомендации по выбору места для бизнеса
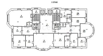
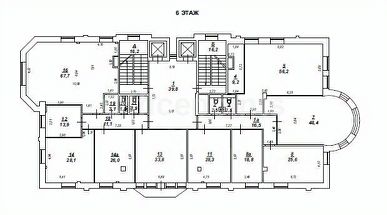
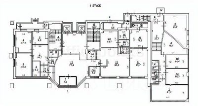
Продается 6-этажное административное здание, В+ класса, которое находится по адресу: Токмаков пер., д. 5, стр. 1. Шаговая доступность от м. Бауманская, Комсомольская, Курская. Удобный выезд на ТТК. Рядом пролегают такие крупные улицы как Старая Басманная, Доброслободская. В здании качественный ремонт, смешанная планировка. Центральная система кондиционирования и приточно-вытяжная система вентиляции. В наличии подземная и наземная парковки (подземный паркинг на 21 м/место). Условия сделки и стоимость подлежат обсуждению.
lock

Войдите или зарегистрируйтесь
для просмотра информации

Просматривайте условия сделки и всю информацию об объекте
Сохраняйте фильтры в поиске и не вводите заново
Доступ к избранному с любого устройства
Неограниченное добавление в избранное
Позвоните автору
Вам ответят на все вопросы
Остались вопросы по объявлению?
Позвоните владельцу объявления и уточните необходимую информацию.
  • Инфраструктура
  • Похожие рядом
Помощь надёжных риелторов
Риелтор партнёр Циан поможет купить или продать любую недвижимость
1 500 000 000 ₽
19 722 959 $
16 736 290
Цена за метр
379 747 ₽
Налог
НДС включен: 270 491 803 ₽
Агентство недвижимости
Документы проверены