Мы используем куки-файлы. Соглашение об использовании

Продается производство, 3 180 м²

Площадь3 180 м²
Этаж1 из 2
Выс. потолков8.0 м.
Отчёт о привлекательности объектаУзнайте, насколько помещение и район подходят для вашего бизнеса
Что входит в отчёт
  • Охват населения
  • Пешеходный трафик
  • Автомобильный трафик
  • Средний бюджет семьи по району
  • Арендные ставки рядом
  • Точки притяжения
  • Конкуренты в радиусе 1 км
  • Рекомендации по выбору места для бизнеса
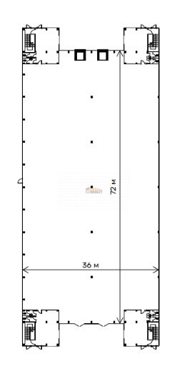
Арт. 131331475 Производственно-складское помещение 3180 м2 с удобной транспортной доступностью с выездом на ЦКАД и Калужское шоссе. Возможно приобретение меньшей площади. Материал стен: СППС панели Нагрузка на пол 5 т/м2 (антипылевое покрытие) Большая площадь остекления, также имеется офисные помещения Колонны железобетонные, шаг 12х18 м Расстояние от пола до ферм 8 м Просторная зона разгрузки 4 погрузочный дока на уровне 1,2 м и в ноль (формата кросс док) Противопожарная сигнализация, пожарные гидранты, система АУТП. Возможна продажа в рассрочку.
lock

Войдите или зарегистрируйтесь
для просмотра информации

Просматривайте условия сделки и всю информацию об объекте
Сохраняйте фильтры в поиске и не вводите заново
Доступ к избранному с любого устройства
Неограниченное добавление в избранное
Позвоните автору
Вам ответят на все вопросы
Остались вопросы по объявлению?
Позвоните владельцу объявления и уточните необходимую информацию.
  • Инфраструктура
  • Похожие рядом
  • Год постройки2026
  • Общая площадь3 180 м²
Центральное отопление
Помощь надёжных риелторов
Риелтор партнёр Циан поможет купить или продать любую недвижимость
451 766 000 ₽
6 329 782 $
5 398 140
Цена за метр
142 065 ₽
Налог
НДС включен: 81 466 000 ₽
Агентство недвижимости
Суперагент