Мы используем куки-файлы. Соглашение об использовании
Площадь66,8 м²
Этаж2 из 23
КлассA
Отчёт о привлекательности объектаУзнайте, насколько помещение и район подходят для вашего бизнеса
Что входит в отчёт
  • Охват населения
  • Пешеходный трафик
  • Автомобильный трафик
  • Средний бюджет семьи по району
  • Арендные ставки рядом
  • Точки притяжения
  • Конкуренты в радиусе 1 км
  • Рекомендации по выбору места для бизнеса
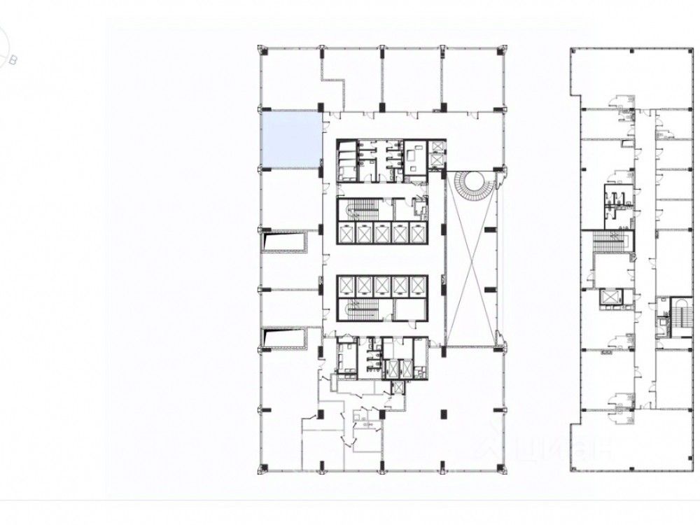
Лот 157740. Продажа клиентского офиса в новом бизнес-центре "Stone Дмитровская". Адрес: Москва, Бутырский район, Дмитровский проезд, 1г. STONE Дмитровская — первый бизнес-центр класса А в локации м. "Дмитровская" от девелопера STONE, лидера офисного рынка. Проект входит в формирующийся технологический деловой кластер северного направления Москвы. На территории бизнес-центра предусмотрена расширенная инфраструктура: торговые помещения, кафе, рестораны, столовая для сотрудников, аптеки и банкоматы. БЦ расположен в шаговой доступности от станций метро и МЦД: м. "Дмитровская": 3 мин. пешком, Станция МЦД-2: 2 мин. пешком, м. "Тимирязевская": 16 мин. пешком. Рядом ведется строительство станции МЦД-1, которая обеспечит прямую транспортную связь с "Москва-Сити" и Инновационным центром "Сколково". Срок ввода: 1 кв. 2027 г. Технические характеристики: Общая площадь: 66,8 кв. м. Помещение СО-205, 2й этаж. Панорамное остекление. Коммуникации: Центральное кондиционирование, приточная вентиляция, система автоматического пожаротушения. Высота потолков: 3.95м, эл.мощность: 0.2 кВт на м2, Подземный паркинг. Коммерческие условия: Стоимость объекта: 35 270 400 рублей. Стоимость за 1 кв. м.: 528 000 рублей.
lock

Войдите или зарегистрируйтесь
для просмотра информации

Просматривайте условия сделки и всю информацию об объекте
Сохраняйте фильтры в поиске и не вводите заново
Доступ к избранному с любого устройства
Неограниченное добавление в избранное
Позвоните автору
Вам ответят на все вопросы
Остались вопросы по объявлению?
Позвоните владельцу объявления и уточните необходимую информацию.
  • Инфраструктура
  • Похожие рядом
Помощь надёжных риелторов
Риелтор партнёр Циан поможет купить или продать любую недвижимость
35 270 400 ₽
468 868 $
400 527
Цена за метр
528 000 ₽
Налог
НДС включен: 6 360 236 ₽
Агентство недвижимости
Суперагент
На Циан
9 лет
Объектов в работе
более 2000