Мы используем куки-файлы. Соглашение об использовании
Помещение свободного назначения, 1 342,5 м²

Продается помещение свободного назначения, 1 342,5 м²

Продажа ГАБ, окупаемость 10 лет

Площадь1 342,5 м²
Этаж1 из 31
ПомещениеСвободно
Отчёт о привлекательности объектаУзнайте, насколько помещение и район подходят для вашего бизнеса
Что входит в отчёт
  • Охват населения
  • Пешеходный трафик
  • Автомобильный трафик
  • Средний бюджет семьи по району
  • Арендные ставки рядом
  • Точки притяжения
  • Конкуренты в радиусе 1 км
  • Рекомендации по выбору места для бизнеса
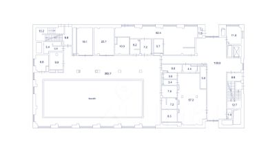
Продается ГАБ - ОСЗ 1342,5 м² в ЖК ВЭРИ на Ботанической с Арендатором - популярным термальным комплексом "Термолэнд" (Termoland). Площадь ОСЗ 1342,5 м², 2 этажа Высота потолков 4,2 м Арендатор Термолэнд ДДА до 2034г ГАП 48 000 000 руб. Коммунальные платежи: компенсируются Арендатором 100% Кадастровая стоимость 87 918 190р Конкуренция отсутствует Стоимость - 500 000 000 руб. вкл. НДС Срок окупаемости 10 лет ЖК ВЭРИ (VERY) на Ботанической Абсолютно уникальный проект класса бизнес+ в густонаселенном районе Москвы с удивительной атмосферой и невероятными возможностями, с современной и лаконичной архитектурой комплекса. 4500 жителей в самом ЖК (5 корпусов). 1 очередь (3 корпуса) - введены в эксплуатацию 2 очередь (2 корпуса) - ввод в 2027 г. Район Марфино на 90% жилой. Увеличенный трафик в выходные дни благодаря гостям Ботанического сада. ЖК Эко-квартал ВЭРИ (VERY) располагается в 20 м от Главного ботанического сада РАН. Первая линия ул. Большая Марфинская Интенсивный трафик для коммерческих помещений Индивидуальные условия покупки Платежеспособная аудитория Транспортная доступность Удобный выезд на Дмитровское и Алтуфьевское шоссе 15 минут до ТТК и проспекта Мира 3 станции метро в пешей доступности Термолэнд - инвестиции в действующий бизнес Федеральная сеть акватермальных комплексов "Термолэнд" (Termoland) — партнер с 10 летним опытом строительства Термальных комплексов и управляющий сетью из 25 объектов. Прибыльный бизнес Финансовая реновация Ваших активов Надежный бизнес с 2019 года 3,5 млн. гостей за 2025 год Лояльностей гостей 5,0 рейтинг гостей по отзывам на Яндекс.Картах Городской курорт с фитнесом Термолэнд Ботаническая, предоставляющий уникальную возможность совмещать урбанистический стиль жизни с роскошью курортного отдыха. 6 бассейнов и 9 парных и хаммамов Большой 25-метровый крытый бассейн с гидро и аэромассажем; Зона релакса и загара Большая зона релакса под солнцем Бесплатные коллективные парения каждый час Индивидуальные программы парений Студия релакса и СПА Круглогодичный бассейн на крыше 2 теплых джакузи - минеральная и морская Звоните!
lock

Войдите или зарегистрируйтесь
для просмотра информации

Просматривайте условия сделки и всю информацию об объекте
Сохраняйте фильтры в поиске и не вводите заново
Доступ к избранному с любого устройства
Неограниченное добавление в избранное
Позвоните автору
Вам ответят на все вопросы
Остались вопросы по объявлению?
Позвоните владельцу объявления и уточните необходимую информацию.
  • Инфраструктура
  • Похожие рядом
  • Тип зданияЖилой дом
  • Общая площадь1 342,5 м²
Помощь надёжных риелторов
Риелтор партнёр Циан поможет купить или продать любую недвижимость
Агентство недвижимости
Суперагент
500 000 000 ₽
6 574 320 $
5 578 764
Цена за метр
372 440 ₽
Налог
НДС включен: 90 163 934 ₽
Агентство недвижимости
Суперагент
На Циан
9 лет
Объектов в работе
54