Мы используем куки-файлы. Соглашение об использовании
Помещение свободного назначения, 203,7 м²

Продается помещение свободного назначения, 203,7 м²

Площадь203,7 м²
Этаж1 из 26
ПомещениеСвободно
Отчёт о привлекательности объектаУзнайте, насколько помещение и район подходят для вашего бизнеса
Что входит в отчёт
  • Охват населения
  • Пешеходный трафик
  • Автомобильный трафик
  • Средний бюджет семьи по району
  • Арендные ставки рядом
  • Точки притяжения
  • Конкуренты в радиусе 1 км
  • Рекомендации по выбору места для бизнеса
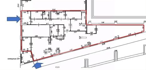
1047931. Предлагаем угловое помещение свободного назначения с арендатором "Самокат", площадью 203.7 кв. м, расположенное на первом этаже 26-этажного жилого дома в ЖК "Тринити". Без комиссии для покупателя. Преимущества объекта: -первая линия ул. Верхнелихоборская; -ЖК состоит из корпусов переменной этажности (от 7 до 33 этажей); -5 минут пешком от станции метро "Верхние Лихоборы"; -плотный жилой массив; -развитая инфраструктура района - рядом с ЖК расположен ТЦ Metromall; -высокий автомобильный и пешеходный трафик; -отлично просматривается, находится в легком доступе для потенциальных клиентов; -гибкая планировка, позволяющая адаптировать пространство под различные нужды; -с ремонтом; -витринное остекление; -место для вывески; -зона разгрузки/погрузки; -наземная парковка. Технические параметры объекта: -3 отдельные входные группы с фасада; -электрическая мощность: 100 кВт; -высота потолков: 3 м. Информация об арендаторе: -арендатор: Самокат; -прибыль: 650 000 руб/мес. Свяжитесь с нами для получения дополнительной информации!
lock

Войдите или зарегистрируйтесь
для просмотра информации

Просматривайте условия сделки и всю информацию об объекте
Сохраняйте фильтры в поиске и не вводите заново
Доступ к избранному с любого устройства
Неограниченное добавление в избранное
Позвоните автору
Вам ответят на все вопросы
Остались вопросы по объявлению?
Позвоните владельцу объявления и уточните необходимую информацию.
  • Инфраструктура
  • Похожие рядом
  • Тип зданияЖилой комплекс
  • Категория зданияДействующее
  • Общая площадь203,7 м²
Помощь надёжных риелторов
Риелтор партнёр Циан поможет купить или продать любую недвижимость
89 850 000 ₽
1 184 525 $
1 006 660
Цена за метр
441 090 ₽
Налог
УСН
Агентство недвижимости
Документы проверены