Мы используем куки-файлы. Соглашение об использовании
Площадь701 м²
Этажность2
КлассC
Отчёт о привлекательности объектаУзнайте, насколько помещение и район подходят для вашего бизнеса
Что входит в отчёт
  • Охват населения
  • Пешеходный трафик
  • Автомобильный трафик
  • Средний бюджет семьи по району
  • Арендные ставки рядом
  • Точки притяжения
  • Конкуренты в радиусе 1 км
  • Рекомендации по выбору места для бизнеса
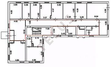
Административное здание . Общая площадь здания 700.8м2. Объект находится на земельном участке 1199 м2, в долгосрочной аренде в аренде у города до 2062 года. В здании два этажа и подвал(площадь 69.7 м2) . Высота потолков 3.1 м. Перекрытия деревянные между первым и вторым этажом. Коммуникации: центральные ХВС, отопление, канализация, ГВС - бойлеры. Выделенная электрическая мощность - 39 кВт. Приточная вентиляция, охранная сигнализация. Парковка наземная на 10 машин. Развитая инфраструктура, в шаговой доступности до метро 10 минут пешком. ВРИ: эксплуатация административного здания. Объект 3504-8350.
lock

Войдите или зарегистрируйтесь
для просмотра информации

Просматривайте условия сделки и всю информацию об объекте
Сохраняйте фильтры в поиске и не вводите заново
Доступ к избранному с любого устройства
Неограниченное добавление в избранное
Позвоните автору
Вам ответят на все вопросы
Остались вопросы по объявлению?
Позвоните владельцу объявления и уточните необходимую информацию.
  • Инфраструктура
  • Похожие рядом
Центральное отопление
Помощь надёжных риелторов
Риелтор партнёр Циан поможет купить или продать любую недвижимость
РиелторТелус
Документы проверены
140 000 000 ₽
1 840 810 $
1 562 054
Цена за метр
199 715 ₽
Налог
НДС включен: 25 245 901 ₽
Агентство недвижимости
Документы проверены
На Циан
12 лет
Объектов в работе
73