Мы используем куки-файлы. Соглашение об использовании
Помещение свободного назначения, 1 596,9 м²
Площадь1 596,9 м²
Этаж1 из 4
ПомещениеСвободно
КлассB+
Отчёт о привлекательности объектаУзнайте, насколько помещение и район подходят для вашего бизнеса
Что входит в отчёт
  • Охват населения
  • Пешеходный трафик
  • Автомобильный трафик
  • Средний бюджет семьи по району
  • Арендные ставки рядом
  • Точки притяжения
  • Конкуренты в радиусе 1 км
  • Рекомендации по выбору места для бизнеса
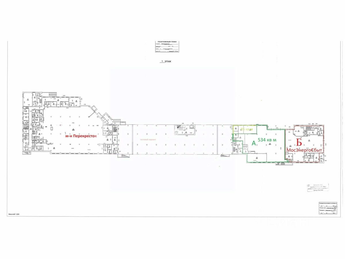
641764. Предлагаем торговое помещение с сетевым якорным арендатором - супермаркетом "Перекрёсток", площадью 1 596.9 кв. м., расположенное на первом этаже бизнес-центра "Мичуринский 31". Без комиссии для покупателя. Преимущества объекта: -200 метров от станции метро Раменки (2 минуты пешком); -объект отлично просматривается, находится в легком доступе для клиентов; -развитая инфраструктура района; -надежный сетевой арендатор; -открытая планировка; -витринное остекление; -место для вывески; -приточно-вытяжная вентиляция; -зона разгрузки/погрузки; -5 мокрых точек; -наземная парковка. Технические параметры объекта: -4 отдельные входные группы; -электрическая мощность: 170 кВт; -высота потолков: 4.2 м. Информация об арендаторе: -арендатор: супермаркет "Перекрёсток", ДДА; -доход: 4 965 000 руб./мес. Свяжитесь с нами для получения дополнительной информации!
lock

Войдите или зарегистрируйтесь
для просмотра информации

Просматривайте условия сделки и всю информацию об объекте
Сохраняйте фильтры в поиске и не вводите заново
Доступ к избранному с любого устройства
Неограниченное добавление в избранное
Позвоните автору
Вам ответят на все вопросы
Остались вопросы по объявлению?
Позвоните владельцу объявления и уточните необходимую информацию.
  • Инфраструктура
  • Похожие рядом
Помощь надёжных риелторов
Риелтор партнёр Циан поможет купить или продать любую недвижимость
660 000 000 ₽
8 678 102 $
7 363 968
Цена за метр
413 301 ₽
Налог
УСН
Агентство недвижимости
Документы проверены