Мы используем куки-файлы. Соглашение об использовании
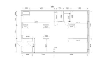
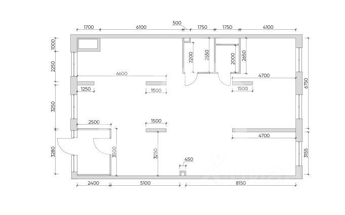
Помещение свободного назначения, 158 м²
Площадь158 м²
Этаж1 из 21
ПомещениеСвободно
Отчёт о привлекательности объектаУзнайте, насколько помещение и район подходят для вашего бизнеса
Что входит в отчёт
  • Охват населения
  • Пешеходный трафик
  • Автомобильный трафик
  • Средний бюджет семьи по району
  • Арендные ставки рядом
  • Точки притяжения
  • Конкуренты в радиусе 1 км
  • Рекомендации по выбору места для бизнеса
952917. Предлагаем помещение свободного назначения в ЖК "Найс Лофт", площадью 158 кв. м, расположенное на первом этаже 21-этажного жилого дома. Без комиссии для покупателя. Преимущества объекта: -первая линия Автомобильного проезда; -ЖК состоит из 7 корпусов переменной этажности (от 16 до 21 этажей), рассчитанных на 2 240 квартир; -шаговая доступность от станции МЦД-2 "Калитники" (13 минут пешком); -удобная транспортная доступность: 1.5 км до ЮВХ и ТТК, 3.5 км до Садового кольца и шоссе Энтузиастов; -плотный жилой массив; -дефицит коммерческих помещений, что гарантирует высокий спрос; -стабильный автомобильный и пешеходный трафик; -отлично просматривается, находится в легком доступе для потенциальных клиентов; -гибкая планировка, позволяющая адаптировать пространство под различные нужды; -витринное остекление; -возможность размещения вывески; -наземная парковка; -рядом остановка общественного транспорта. Технические параметры объекта: -отдельный вход с улицы; -электрическая мощность: 21.5 кВт; -высота потолков: 3.1 м. Дом сдан. Свяжитесь с нами для получения дополнительной информации!
lock

Войдите или зарегистрируйтесь
для просмотра информации

Просматривайте условия сделки и всю информацию об объекте
Сохраняйте фильтры в поиске и не вводите заново
Доступ к избранному с любого устройства
Неограниченное добавление в избранное
Позвоните автору
Вам ответят на все вопросы
Остались вопросы по объявлению?
Позвоните владельцу объявления и уточните необходимую информацию.
  • Инфраструктура
  • Похожие рядом
  • Тип зданияЖилой комплекс
  • Категория зданияДействующее
  • Общая площадь158 м²
Приточная вентиляция
Центральное кондиционирование
Центральное отопление
Помощь надёжных риелторов
Риелтор партнёр Циан поможет купить или продать любую недвижимость
61 024 182 ₽
813 662 $
693 668
Цена за метр
386 229 ₽
Налог
НДС включен: 11 004 360 ₽
Агентство недвижимости
Документы проверены