Мы используем куки-файлы. Соглашение об использовании
Помещение свободного назначения, 67 м²

Продается помещение свободного назначения, 67 м²

    Площадь67 м²
    Этаж1 из 14
    Отчёт о привлекательности объектаУзнайте, насколько помещение и район подходят для вашего бизнеса
    Что входит в отчёт
    • Охват населения
    • Пешеходный трафик
    • Автомобильный трафик
    • Средний бюджет семьи по району
    • Арендные ставки рядом
    • Точки притяжения
    • Конкуренты в радиусе 1 км
    • Рекомендации по выбору места для бизнеса
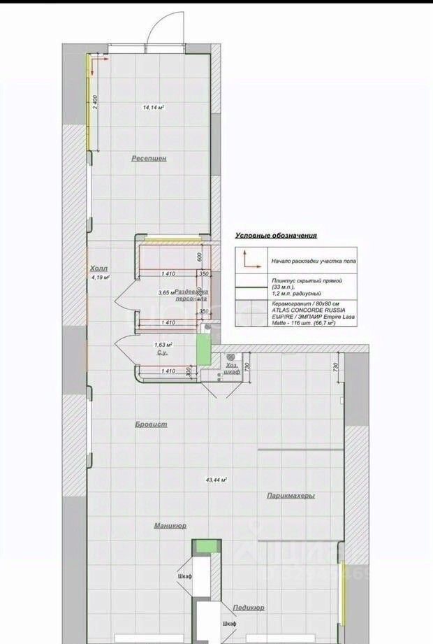
    Помещение свободного назначения на первой линии ЖК "Nagatino I-Land". Форма сделки: Помещение в собственности физического лица. Продажа по ДКП. Без комиссии. Технические характеристики: - общая площадь 67 м - потолки от 5.3 м; - электрическая мощность 15 кВт; - центральные коммуникации; - отдельный вход; - мокрая точка/канализация, технологическая вытяжка; - открытая планировка без перегородок; - большие окна и рекламные возможности. Объект расположен рядом в новом ЖК рядом с станцией метро "Технопарк". Помещение правильной формы с большим количеством окон, много естественного света. ЖК давно заселен, развитая инфраструктура. Первая линия, пешеходная аллея. Рядом находится супермаркет "Магнит". В помещении сделаны все черновые работы и разводка инженерии. Все готово для салона красоты. Есть дизайн-проект. Высота позволяет сделать полноценный второй этаж/антресоль, что намного увеличит полезную площадь. Отлично подойдет как для ведения собственного бизнеса, так и для арендного. Любой вид деятельности: магазин, салон красоты, кофейню и другое. Звоните, отвечу на все дополнительные вопросы! Номер в базе: J1322
    lock

    Войдите или зарегистрируйтесь
    для просмотра информации

    Просматривайте условия сделки и всю информацию об объекте
    Сохраняйте фильтры в поиске и не вводите заново
    Доступ к избранному с любого устройства
    Неограниченное добавление в избранное
    Позвоните автору
    Вам ответят на все вопросы
    Остались вопросы по объявлению?
    Позвоните владельцу объявления и уточните необходимую информацию.
    • Инфраструктура
    • Похожие рядом
    • Общая площадь67 м²
    Центральное отопление
    Помощь надёжных риелторов
    Риелтор партнёр Циан поможет купить или продать любую недвижимость
    43 500 000 ₽
    575 951 $
    492 736
    Цена за метр
    649 254 ₽
    Налог
    УСН
    Агентство недвижимости
    На Циан
    1 год
    Объектов в работе
    75
    Риелтор
    Суперагент
    5,0・22