Мы используем куки-файлы. Соглашение об использовании
Онлайн-бронирование
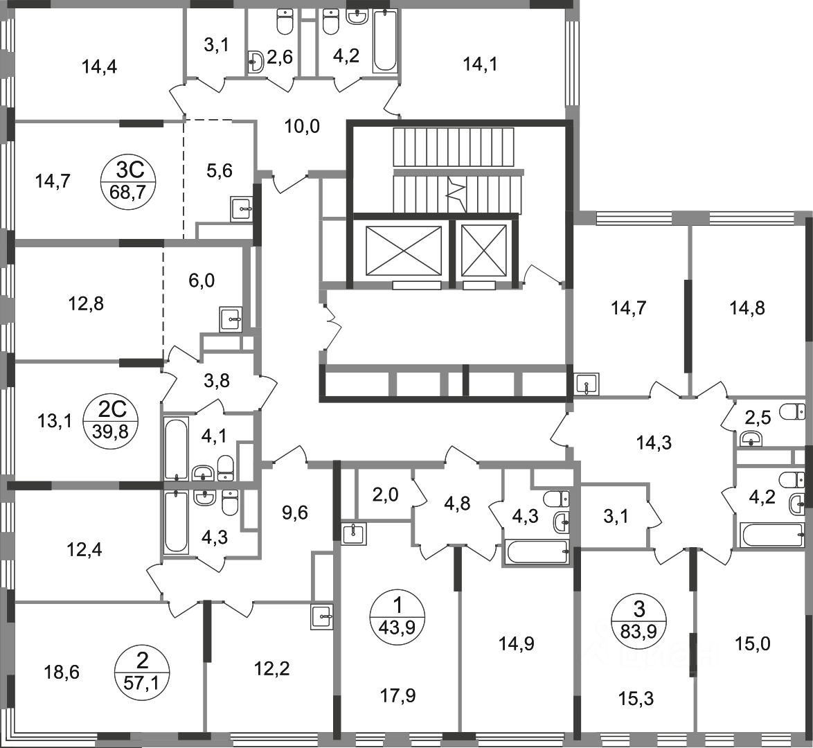
Общая площадь39,8 м²
Площадь кухни6 м²
Этаж15 из 17
Год сдачи2028
ДомНе сдан
ОтделкаБез отделки
Продается двухкомнатная квартира без отделки в городе-парке "Переделкино Ближнее". Общая площадь квартиры - 39,8 кв. м, этаж 15 из 17. Срок сдачи - 1 квартал 2028 года. Тип дома - монолитный. ТОЛЬКО ДО 30 АПРЕЛЯ выгодные условия на приобретение квартиры в ипотеку или рассрочку. Звоните - и мы подберем оптимальное предложение под ваш запрос! Корпус расположен в 13 фазе строительства и состоит из 8 секций с переменной этажностью 12-17 этажей. Все секции без отделки. Около 13 фазы запланировано строительство многоуровневого паркинга на 300 м/мест. 13 фаза имеет уникальное расположение и находится непосредственно на берегу Федосьинского пруда, который является сердцем города-парка "Переделкино Ближнее". Город-парк "Переделкино Ближнее" расположен в 8 км от МКАД по Боровскому шоссе. ТРАНСПОРТНАЯ ДОСТУПНОСТЬ: - 15 минут пешком до станции МЦД-4 "Мичуринец" - 25 минут пешком до станции метро "Рассказовка" Солнцевской линии - 30 минут до центра Москвы - 2026 г. - открытие трассы Солнцево-Бутово-Варшавское шоссе РАЗВИТАЯ СОЦИАЛЬНАЯ ИНФРАСТРУКТУРА: - 7 детских садов, 3 школы - банки, продуктовые магазины, аптеки, фитнес центры, салоны красоты и пр БЛАГОУСТРОЙСТВО: - дворы без машин - игровые зоны и развивающие детские площадки - зоны для созерцательного и медитативного отдыха - зоны для занятий спортом ОСОБЕННОСТИ АРХИТЕКТУРЫ: - высокие потолки от 3,03 м - безбарьерные входные группы - колясочные в каждой входной группе - кладовые помещения расположены на -1 этаже каждой секции - в каждой секции 2 лифта: 1 пассажирский, 1 грузовой - на фасаде предусмотрены корзины для установки кондиционеров АВТОРСКИЙ ДИЗАЙН: Входные группы выполнены по авторскому дизайну, благодаря панорамному остеклению наполнены естественным светом. В каждой входной группе будет располагаться комфортабельная зона ожидания с возможностью зарядить электронные устройства, почтовые ящики, колясочная, акцентные пуфы и столик.

О квартире

Тип жилья

Новостройка

Общая площадь

39,8 м²

Площадь кухни

6 м²

Высота потолков

3,33 м

Санузел

1 совмещенный

Вид из окон

На улицу

Отделка

Без отделки

О доме

Количество лифтов

1 пассажирский

Тип дома

Монолитный

Пандус

Есть

Понравилась квартира — узнайте о ней больше

Застройщик ответит на все вопросы

Варианты отделки в ЖК

  • Чистовая
  • Предчистовая
  • Без отделки

3D-тур

Посмотрите 3D-тур, чтобы оценить объект

О ЖК «Город-парк Переделкино Ближнее»

  • Сдача комплекса
    Сдача в 2026—2028, есть сданные
  • Застройщик
    Абсолют Недвижимость
  • Класс
    Комфорт
  • Тип дома
    Панельный, монолитно-кирпичный, монолитный
  • Парковка
    Отдельная многоуровневая, гостевая
  • Отделка
    Без отделки, предчистовая, чистовая
  • Тип комплекса
    Жилой комплекс
Похоже на то, что вы ищете?

Особенности жилого комплекса

  • Отделка

  • Внутренний двор

  • Парки

  • Архитектура

  • Входная группа

Подробнее о жилом комплексе

Акции в ЖК «Город-парк Переделкино Ближнее»

Узнайте про персональные условия и дополнительные скидки при покупке квартиры у застройщика
logo

Квартиры со скидкой до 3,3 млн руб.

logo

Скидки до 12%

Рассрочка 0%

logo

Скидки до 15% на квартиры с ключами

Материнский капитал

Бронирование квартиры

Трейд-ин Авто

Ипотечный калькулятор
  • Базовая
  • Семейная
  • ИТ-ипотека
  • 20%
  • 30%
  • 40%
  • 50%
лет
  • 10 лет
  • 20 лет
  • 30 лет
Загружаем предложения от застройщика и банков
Корпус проверен наш.дом.рф
Обновлено 13 апреля 2026
  • Нет в реестре проблемных объектов
  • Застройщик не банкрот
  • Есть эскроу счёт
  • Актуальные фото стройки

Ещё квартиры в жилом комплексе

404 квартиры в продаже · Сдача в 2026—2028, есть сданные
ЗастройщикАбсолют Недвижимость
Год основания: 1990
Строится: 18 домов в 3 ЖК
15 258 210 ₽
Цена за метр
383 372 ₽/м²
Условия сделки
долевое участие (214-ФЗ)