Мы используем куки-файлы. Соглашение об использовании
Онлайн-бронирование

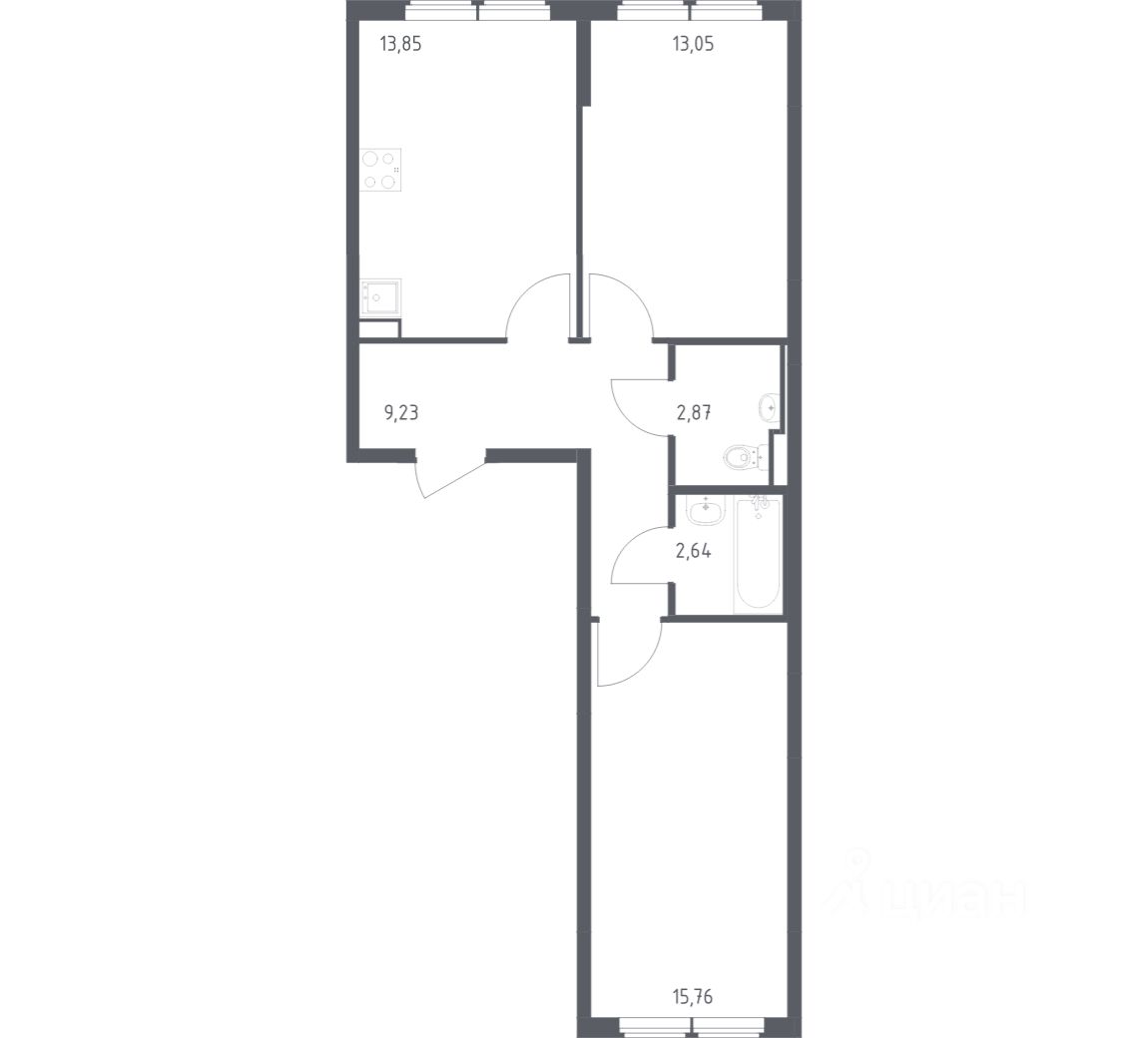
Продается 2-комн. квартира, 57,4 м²

Транспортная доступность 4,5 из 10Подробнее
Общая площадь57,4 м²
Жилая площадь28,8 м²
Этаж7 из 12
Год сдачи2026
ДомНе сдан
ОтделкаБез отделки
Строим кварталы для жизни с заботой о будущем. Предлагается 2-комнатная квартира комфорт-класса площадью 57,4 кв.м в корпусе 23 на 7-м этаже, в жилом комплексе "Остафьево". Застройщик сдает квартиры с отделкой в нескольких вариантах: предчистовая, готовая, улучшенная или вариант без нее. Последний подойдет тем, кто хочет создать свой уникальный интерьер и ничем себя не ограничивать. А если не хочется тратить время на ремонт, можно выбрать опцию — с отделкой. Перед тем как отдать ключи, застройщик установит натяжные потолки, поклеит обои под покраску, положит ламинат светлых тонов, а в санузлах — керамическую плитку и керамогранит. Приобрести квартиру возможно по специальным акциям от застройщика, с текущими условиями акций можно ознакомиться в блоке "Акций". Цена динамическая и может отличаться, уточняйте актуальность у застройщика. "Остафьево" — масштабный жилой комплекс в Новой Москве, рядом с одноименным музеем-усадьбой и городским парком "Барыши". До станций МЦД "Щербинка" и "Остафьево" можно добраться на автомобиле за 57 минут. Часть домов уже сдана, на территории открыты две школы и три детских сада, а в будущем будет построена поликлиника, ТЦ, еще одна школа и три детских сада. Все необходимое рядом: на первых этажах домов работают магазины, аптеки и кафе. Дворы — приватные мини-парки без машин и посторонних. Кроме игровых площадок, для детей обустроили тематический плейхаб "Маяк". В будущем появятся плейхаб "Алиса в стране чудес", арт-объект "Тропа зеркал", а также большой ландшафтный парк. В квартале — монолитные дома комфортной высоты, от 10 этажей. Светлые фасады украшают кирпичные вставки в теплых природных оттенках.

О квартире

Тип жилья

Новостройка

Общая площадь

57,4 м²

Жилая площадь

28,8 м²

Высота потолков

3 м

Отделка

Без отделки

О доме

Количество лифтов

1 пассажирский, 1 грузовой

Тип дома

Монолитный

Понравилась квартира — узнайте о ней больше

Застройщик ответит на все вопросы

Варианты отделки в ЖК

  • Чистовая
  • Предчистовая
  • Без отделки

О ЖК «Остафьево»

  • Сдача комплекса
    Сдача в 3 кв. 2026, есть сданные
  • Застройщик
    Группа Самолет
  • Класс
    Комфорт
  • Тип дома
    Монолитно-кирпичный, монолитный
  • Парковка
    Отдельная многоуровневая
  • Отделка
    Без отделки, предчистовая, чистовая
  • Тип комплекса
    Жилой комплекс
Похоже на то, что вы ищете?

Особенности жилого комплекса

  • Отделка

  • Внутренний двор

  • Парки

  • Архитектура

  • Входная группа

Подробнее о жилом комплексе

Акции в ЖК «Остафьево»

Узнайте про персональные условия и дополнительные скидки при покупке квартиры у застройщика
logo

Скидка до -15% всем. Без исключений

Выгодно
logo

Квартира Дня

logo

Квартиры со скидкой 15%

Рассрочка с фиксированным платежом

logo

Выгода до 11% за 100% оплату

logo

Скидка для военных 3%

Материнский капитал

Материнский капитал

Мебельные сеты

Самолет. Бонус

Выгода до 180000 руб.

Трейд-ин -4%

Ипотечный калькулятор
  • Базовая
  • Семейная
  • ИТ-ипотека
  • 20%
  • 30%
  • 40%
  • 50%
лет
  • 10 лет
  • 20 лет
  • 30 лет
Загружаем предложения от застройщика и банков
Корпус проверен наш.дом.рф
Обновлено 15 апреля 2026
  • Нет в реестре проблемных объектов
  • Застройщик не банкрот
  • Есть эскроу счёт
  • Неактуальные фото стройки

Ещё квартиры в жилом комплексе

89 квартир в продаже · Сдача в 3 кв. 2026, есть сданные
ЗастройщикГруппа Самолет
Год основания: 2012
Строится: 271 дом в 61 ЖК
15 533 760 ₽
100% оплата
logo
Скидка до -15% всем. Без исключенийАкция от застройщика
Цена за метр
270 623 ₽/м²
Условия сделки
долевое участие (214-ФЗ)