Мы используем куки-файлы. Соглашение об использовании
Онлайн-бронирование

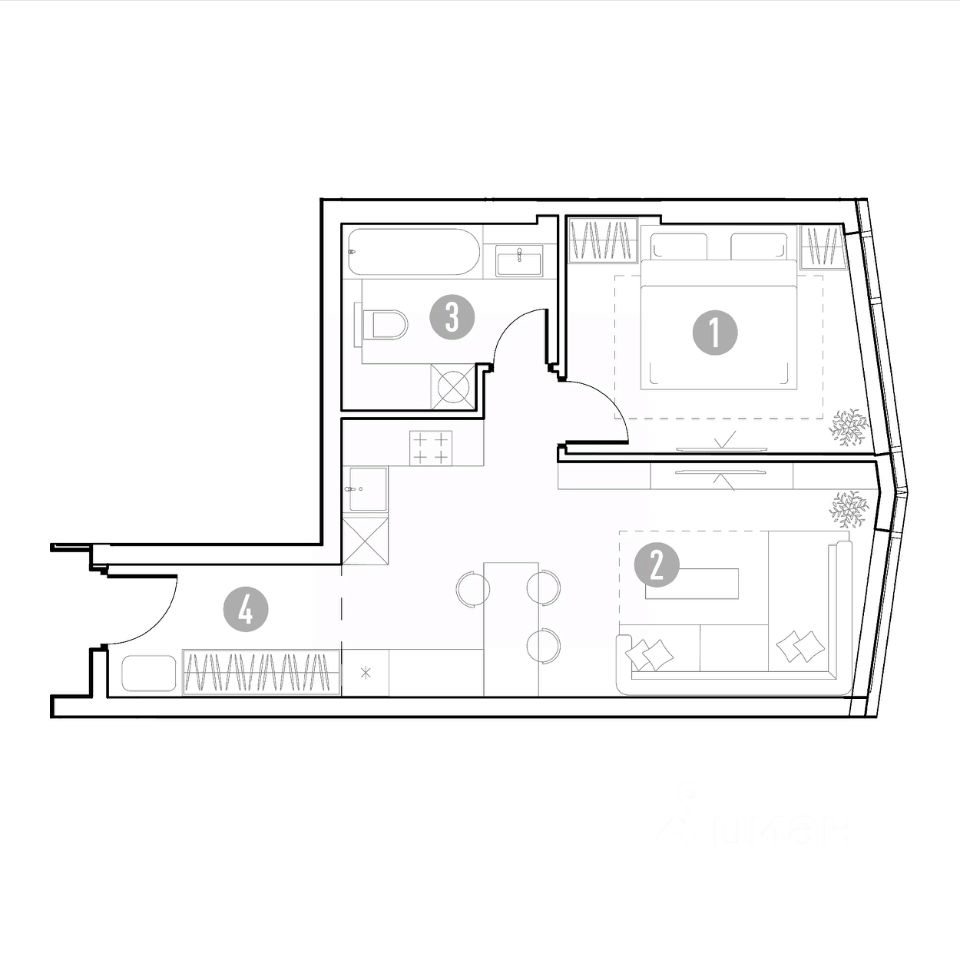
Продается 1-комн. квартира, 44,72 м²

Транспортная доступность 6,3 из 10Подробнее
Общая площадь44,72 м²
Жилая площадь11,2 м²
Площадь кухни22,4 м²
Этаж2 из 35
Год сдачи2028
ДомНе сдан
ОтделкаБез отделки
Продается 1-к квартира площадью 44.72 кв.м. на 2-м этаже 35 этажного дома в ЖК "УНО Горбунова" от ГК ОСНОВА. Старт продаж! Жилой комплекс УНО Горбунова — современное решение для комфортного проживания в западном округе Москвы, всего в 20 минутах от Арбата. Стильная архитектура с волнообразными фасадами, продуманные планировки квартир и уютный благоустроенный двор всё создает комфортную атмосферу для жизни. Комплекс расположен в Можайском районе, что обеспечивает легкий доступ к транспортным маршрутам: станция МЦД "Сетунь" в шаговой доступности, до метро "Молодежная" всего 10 минут на транспорте, а для автомобилистов удобные выезды на ключевые магистрали.

О квартире

Тип жилья

Новостройка

Общая площадь

44,72 м²

Жилая площадь

11,2 м²

Площадь кухни

22,4 м²

Высота потолков

2,85 м

Санузел

1 совмещенный

Вид из окон

Во двор

Отделка

Без отделки

О доме

Количество лифтов

10 пассажирских, 3 грузовых

Тип дома

Монолитный

Парковка

Подземная

Понравилась квартира — узнайте о ней больше

Застройщик ответит на все вопросы

Варианты отделки в ЖК

  • Без отделки

О ЖК «УНО Горбунова»

  • Сдача комплекса
    Сдача в 1 кв. 2028
  • Застройщик
    ГК Основа
  • Класс
    Бизнес
  • Тип дома
    Монолитно-кирпичный
  • Парковка
    Подземная, гостевая
  • Отделка
    Без отделки
  • Тип комплекса
    Жилой комплекс
Похоже на то, что вы ищете?

Особенности жилого комплекса

  • Отделка

  • Парковка

  • Внутренний двор

  • Архитектура

  • Входная группа

Подробнее о жилом комплексе

Акции в ЖК «УНО Горбунова»

Узнайте про персональные условия и дополнительные скидки при покупке квартиры у застройщика

Рассрочка 0% c ПВ 5-70%

Рассрочка 0% c ПВ 30%

logo

Скидка до 15%

Ипотечный калькулятор
  • Базовая
  • Семейная
  • ИТ-ипотека
  • 20%
  • 30%
  • 40%
  • 50%
лет
  • 10 лет
  • 20 лет
  • 30 лет
Загружаем предложения от застройщика и банков
Корпус проверен наш.дом.рф
Обновлено 13 апреля 2026
  • Нет в реестре проблемных объектов
  • Застройщик не банкрот
  • Есть эскроу счёт
  • Актуальные фото стройки

Ещё квартиры в жилом комплексе

70 квартир в продаже · Сдача в 1 кв. 2028
ЗастройщикГК Основа
Год основания: 2016
Строится: 24 дома в 10 ЖК
17 888 000 ₽
Цена за метр
400 000 ₽/м²
Условия сделки
долевое участие (214-ФЗ)